受付時間:平日9時~17時
売却マイページ
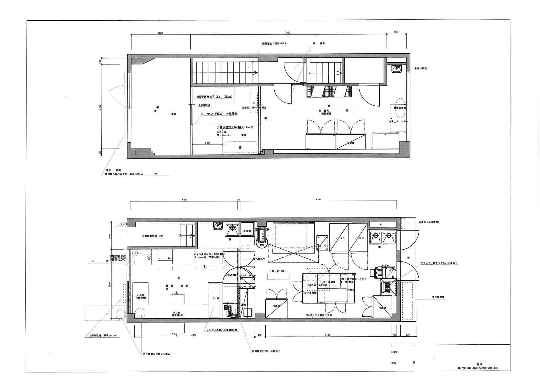
譲渡No.9390

大阪市淀川区のベーカリーの居抜き売却物件の案件情報 十三駅徒歩5分!ベーカリーショップ居抜き物件!

案件概要

最寄り駅

十三 (阪急神戸本線)
徒歩5

現賃料 / 坪単価

- / 6,909

面積 坪(㎡)

28.66坪94.76m2

希望譲渡額

300万円

前業態

ベーカリー

募集終了しました

案件詳細情報

所在地

大阪府 大阪市淀川区

最寄り駅

十三 (阪急神戸本線) 徒歩5分

現賃料 / 坪単価

- / 6,909円

階数 / 建物

地上1-地上2階 / 地上4階建

面積 坪(㎡)

28.66坪94.76m2

構造

鉄骨造

保証金・敷金

-

契約期間

礼金

-

希望譲渡額

300万円

共益費 / 管理費

-

償却

-

更新料

-

情報公開日(更新日)

2022-12-28

売却テナントの基本情報

業態

ベーカリー

営業年数

-

営業時間

-

席数

-

コメント

-

この案件の取り扱い会社

募集終了しました

別の案件を探す
相談0円 居抜きで売却するなら、早めのご相談がおすすめです! 詳しく見る