受付時間:平日9時~17時
売却マイページ
譲渡No.9302

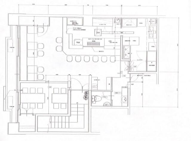
横浜市中区の 居酒屋の居抜き売却物件の案件情報 関内駅徒歩3分!居酒屋居抜き物件!

案件概要

最寄り駅

関内 (JR京浜東北・根岸線)
徒歩3

現賃料 / 坪単価

- / 10,410

面積 坪(㎡)

25.15坪83.15m2

希望譲渡額

330万円

前業態

 居酒屋

募集終了しました

案件詳細情報

所在地

神奈川県 横浜市中区

最寄り駅

関内 (JR京浜東北・根岸線) 徒歩3分

伊勢佐木長者町 (横浜市営地下鉄) 徒歩5分

現賃料 / 坪単価

- / 10,410円

階数 / 建物

地上2階 / 地上9階建

面積 坪(㎡)

25.15坪83.15m2

構造

RC造

保証金・敷金

-

契約期間

3年

礼金

-

希望譲渡額

330万円

共益費 / 管理費

-

償却

-

更新料

-

情報公開日(更新日)

2022-08-30

現テナントの基本情報

業態

 居酒屋

営業年数

-

営業時間

-

席数

-

コメント

-

この案件の取り扱い会社

募集終了しました

別の案件を探す
相談0円 居抜きで売却するなら、早めのご相談がおすすめです! 詳しく見る