受付時間:平日9時~17時
売却マイページ
譲渡No.8496

世田谷区の居酒屋の居抜き売却物件の案件情報 駅から徒歩1分!商店街に面したビル、専用階段有り!

案件概要

最寄り駅

千歳烏山 (京王本線)
徒歩1

現賃料 / 坪単価

- / 14,273

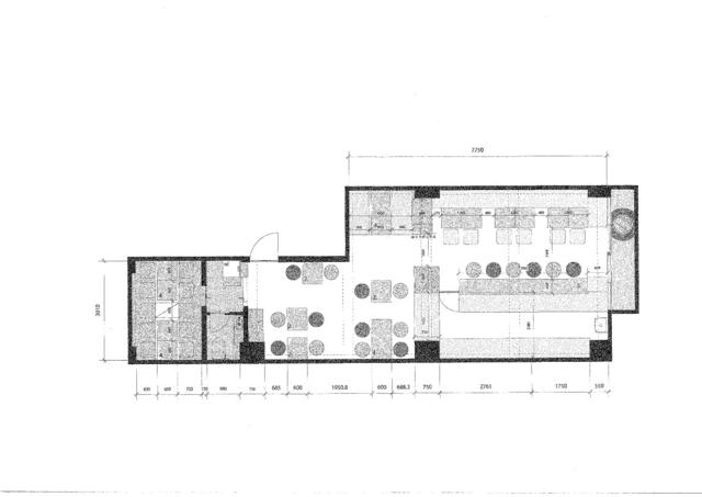
面積 坪(㎡)

19.98坪66.072m2

希望譲渡額

200万円

前業態

居酒屋

募集終了しました

案件詳細情報

所在地

東京23区 世田谷区

最寄り駅

千歳烏山 (京王本線) 徒歩1分

現賃料 / 坪単価

- / 14,273円

階数 / 建物

地下1階 / 地上7地下1階建

面積 坪(㎡)

19.98坪66.072m2

構造

鉄骨鉄筋コンクリート造

保証金・敷金

-

契約期間

3年

礼金

-

希望譲渡額

200万円

共益費 / 管理費

-

償却

-

更新料

-

情報公開日(更新日)

2021-01-08

現テナントの基本情報

業態

居酒屋

営業年数

-

営業時間

-

席数

-

コメント

-

この案件の取り扱い会社

募集終了しました

別の案件を探す
相談0円 居抜きで売却するなら、早めのご相談がおすすめです! 詳しく見る