受付時間:平日9時~17時
売却マイページ
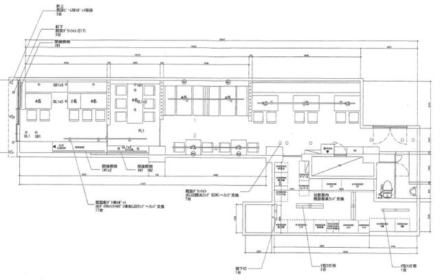
譲渡No.7814

名古屋市中区の居酒屋の居抜き売却物件の案件情報 広小路通り沿い、1階路面店舗!

案件概要

最寄り駅

新栄町 (名古屋市営東山線)
徒歩5

現賃料 / 坪単価

- / 14,040

面積 坪(㎡)

25坪82.65m2

希望譲渡額

216万円

前業態

居酒屋

募集終了しました

案件詳細情報

所在地

愛知県 名古屋市中区

最寄り駅

新栄町 (名古屋市営東山線) 徒歩5分

(名古屋市営東山線) 徒歩6分

現賃料 / 坪単価

- / 14,040円

階数 / 建物

地上1階 / 地上7階建

面積 坪(㎡)

25坪82.65m2

構造

鉄筋コンクリート造

保証金・敷金

-

契約期間

礼金

-

希望譲渡額

216万円

共益費 / 管理費

-

償却

-

更新料

-

情報公開日(更新日)

2019-04-26

現テナントの基本情報

業態

居酒屋

営業年数

-

営業時間

-

席数

-

コメント

-

この案件の取り扱い会社

募集終了しました

別の案件を探す
相談0円 居抜きで売却するなら、早めのご相談がおすすめです! 詳しく見る