受付時間:平日9時~17時
売却マイページ
譲渡No.6520

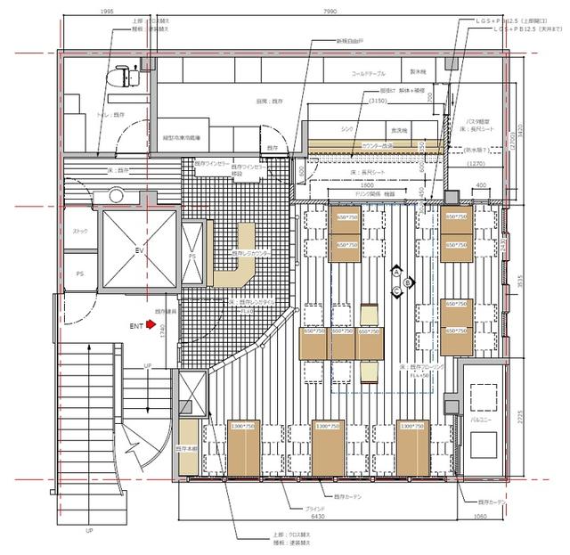
横浜市中区のイタリアンの居抜き売却物件の案件情報 駅徒歩1分!商店街沿いのイタリアン居抜き店舗です。

案件概要

最寄り駅

石川町 (JR京浜東北・根岸線)
徒歩1

現賃料 / 坪単価

- / 12,231

面積 坪(㎡)

25.23坪83.4m2

希望譲渡額

100万円

前業態

イタリアン

募集終了しました

案件詳細情報

所在地

神奈川県 横浜市中区

最寄り駅

石川町 (JR京浜東北・根岸線) 徒歩1分

元町・中華街 (みなとみらい線) 徒歩9分

現賃料 / 坪単価

- / 12,231円

階数 / 建物

地上2階 / 地上4階建

面積 坪(㎡)

25.23坪83.4m2

構造

鉄骨造

保証金・敷金

-

契約期間

3年

礼金

-

希望譲渡額

100万円

共益費 / 管理費

-

償却

-

更新料

-

情報公開日(更新日)

2017-06-08

現テナントの基本情報

業態

イタリアン

営業年数

-

営業時間

-

席数

-

コメント

-

この案件の取り扱い会社

募集終了しました

別の案件を探す
相談0円 居抜きで売却するなら、早めのご相談がおすすめです! 詳しく見る