受付時間:平日9時~17時
売却マイページ
譲渡No.6464

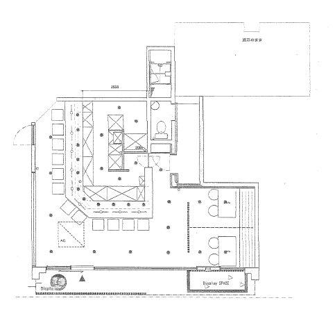
世田谷区の和食の居抜き売却物件の案件情報 バス停目の前!1階路面、割烹料理店居抜き店舗!

案件概要

最寄り駅

学芸大学 (東急東横線)
徒歩11

現賃料 / 坪単価

- / 10,834

面積 坪(㎡)

21.93坪72.5m2

希望譲渡額

162万円

前業態

和食

募集終了しました

案件詳細情報

所在地

東京23区 世田谷区

最寄り駅

学芸大学 (東急東横線) 徒歩11分

三軒茶屋 (東急田園都市線) バス7分

現賃料 / 坪単価

- / 10,834円

階数 / 建物

地上1階 / 地上3階建

面積 坪(㎡)

21.93坪72.5m2

構造

RC造

保証金・敷金

-

契約期間

3年

礼金

-

希望譲渡額

162万円

共益費 / 管理費

-

償却

-

更新料

-

情報公開日(更新日)

2017-04-12

現テナントの基本情報

業態

和食

営業年数

-

営業時間

-

席数

-

コメント

-

この案件の取り扱い会社

募集終了しました

別の案件を探す
相談0円 居抜きで売却するなら、早めのご相談がおすすめです! 詳しく見る