受付時間:平日9時~17時
売却マイページ
譲渡No.6058

世田谷区のカフェの居抜き売却物件の案件情報 小田急線下北沢駅徒歩2分!2階カフェバー居抜き

案件概要

最寄り駅

下北沢 (小田急本線・小田原線)
徒歩2

現賃料 / 坪単価

- / 21,600

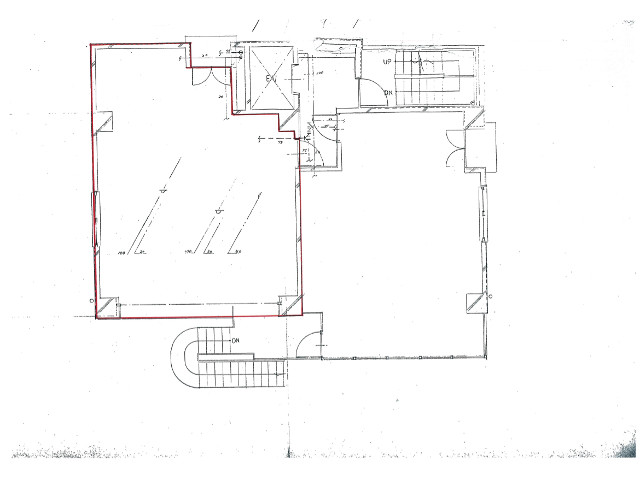
面積 坪(㎡)

15坪49.59m2

希望譲渡額

54万円

前業態

カフェ

募集終了しました

案件詳細情報

所在地

東京23区 世田谷区

最寄り駅

下北沢 (小田急本線・小田原線) 徒歩2分

現賃料 / 坪単価

- / 21,600円

階数 / 建物

地上2階 /

面積 坪(㎡)

15坪49.59m2

構造

鉄筋コンクリート造

保証金・敷金

-

契約期間

3年

礼金

-

希望譲渡額

54万円

共益費 / 管理費

-

償却

-

更新料

-

情報公開日(更新日)

2016-05-20

現テナントの基本情報

業態

カフェ

営業年数

-

営業時間

-

席数

-

コメント

-

この案件の取り扱い会社

募集終了しました

別の案件を探す
相談0円 居抜きで売却するなら、早めのご相談がおすすめです! 詳しく見る