受付時間:平日9時~17時
売却マイページ
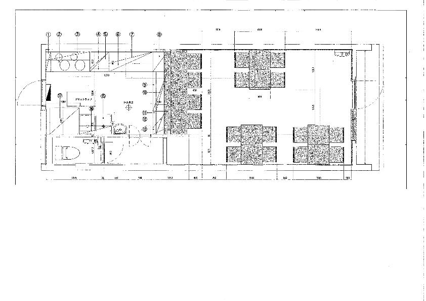
譲渡No.5402

川崎市中原区のビストロの居抜き売却物件の案件情報 元住吉駅徒歩1分!内装美装店舗!11坪ビストロ店の居抜き情報です!

案件概要

最寄り駅

元住吉 (東急東横線)
徒歩1

現賃料 / 坪単価

- / 15,711

面積 坪(㎡)

11坪36.36m2

希望譲渡額

350万円

前業態

ビストロ

募集終了しました

案件詳細情報

所在地

神奈川県 川崎市中原区

最寄り駅

元住吉 (東急東横線) 徒歩1分

元住吉 (東急目黒線) 徒歩1分

現賃料 / 坪単価

- / 15,711円

階数 / 建物

地上1階 / 地上2階建

面積 坪(㎡)

11坪36.36m2

構造

木造

保証金・敷金

-

契約期間

3年

礼金

-

希望譲渡額

350万円

共益費 / 管理費

-

償却

-

更新料

-

情報公開日(更新日)

2015-06-08

現テナントの基本情報

業態

ビストロ

営業年数

-

営業時間

-

席数

-

コメント

-

この案件の取り扱い会社

募集終了しました

別の案件を探す
相談0円 居抜きで売却するなら、早めのご相談がおすすめです! 詳しく見る