受付時間:平日9時~17時
売却マイページ
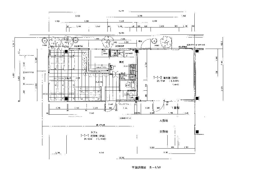
譲渡No.3950

鎌倉市のカフェの居抜き売却物件の案件情報 希少エリアの内装美装店舗になります!

案件概要

最寄り駅

鎌倉 (JR横須賀線)
徒歩5

現賃料 / 坪単価

- / 33,953

面積 坪(㎡)

10.84坪35.83m2

希望譲渡額

330万円

前業態

カフェ

募集終了しました

案件詳細情報

所在地

神奈川県 鎌倉市

最寄り駅

鎌倉 (JR横須賀線) 徒歩5分

現賃料 / 坪単価

- / 33,953円

階数 / 建物

地上1階 /

面積 坪(㎡)

10.84坪35.83m2

構造

保証金・敷金

-

契約期間

3年

礼金

-

希望譲渡額

330万円

共益費 / 管理費

-

償却

-

更新料

-

情報公開日(更新日)

2013-03-11

現テナントの基本情報

業態

カフェ

営業年数

-

営業時間

-

席数

-

コメント

-

この案件の取り扱い会社

募集終了しました

別の案件を探す
相談0円 居抜きで売却するなら、早めのご相談がおすすめです! 詳しく見る