受付時間:平日9時~17時
売却マイページ
譲渡No.3591

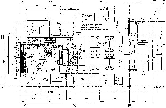
横浜市中区の韓国料理の居抜き売却物件の案件情報 関内駅から徒歩5分、厨房設備充実。29.81坪韓国料理の譲渡情報です。

案件概要

最寄り駅

関内 (JR京浜東北・根岸線)
徒歩5

現賃料 / 坪単価

- / 24,653

面積 坪(㎡)

29.81坪98.56m2

希望譲渡額

650万円

前業態

韓国料理

募集終了しました

案件詳細情報

所在地

神奈川県 横浜市中区

最寄り駅

関内 (JR京浜東北・根岸線) 徒歩5分

現賃料 / 坪単価

- / 24,653円

階数 / 建物

地上1階 / 地上10地下1階建

面積 坪(㎡)

29.81坪98.56m2

構造

鉄筋コンクリート造

保証金・敷金

-

契約期間

3年

礼金

-

希望譲渡額

650万円

共益費 / 管理費

-

償却

-

更新料

-

情報公開日(更新日)

2012-09-05

現テナントの基本情報

業態

韓国料理

営業年数

-

営業時間

-

席数

-

コメント

-

この案件の取り扱い会社

募集終了しました

別の案件を探す
相談0円 居抜きで売却するなら、早めのご相談がおすすめです! 詳しく見る