受付時間:平日9時~17時
売却マイページ
譲渡No.10030

横浜市金沢区のラーメンの居抜き売却物件の案件情報 鳥浜駅徒歩5分!ラーメン店居抜き物件!

案件概要

最寄り駅

鳥浜 (金沢シーサイドライン)
徒歩5

現賃料 / 坪単価

- / 6,942

面積 坪(㎡)

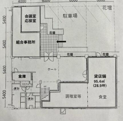
28.86坪95.4m2

希望譲渡額

190万円

前業態

ラーメン

募集終了しました

案件詳細情報

所在地

神奈川県 横浜市金沢区

最寄り駅

鳥浜 (金沢シーサイドライン) 徒歩5分

現賃料 / 坪単価

- / 6,942円

階数 / 建物

地上1階 / 地上4階建

面積 坪(㎡)

28.86坪95.4m2

構造

鉄筋コンクリート造

保証金・敷金

-

契約期間

2年間

礼金

-

希望譲渡額

190万円

共益費 / 管理費

-

償却

-

更新料

-

情報公開日(更新日)

2023-07-18

現テナントの基本情報

業態

ラーメン

営業年数

-

営業時間

-

席数

-

コメント

-

この案件の取り扱い会社

募集終了しました

別の案件を探す
相談0円 居抜きで売却するなら、早めのご相談がおすすめです! 詳しく見る