受付時間:平日9時~17時
売却マイページ
譲渡No.10011

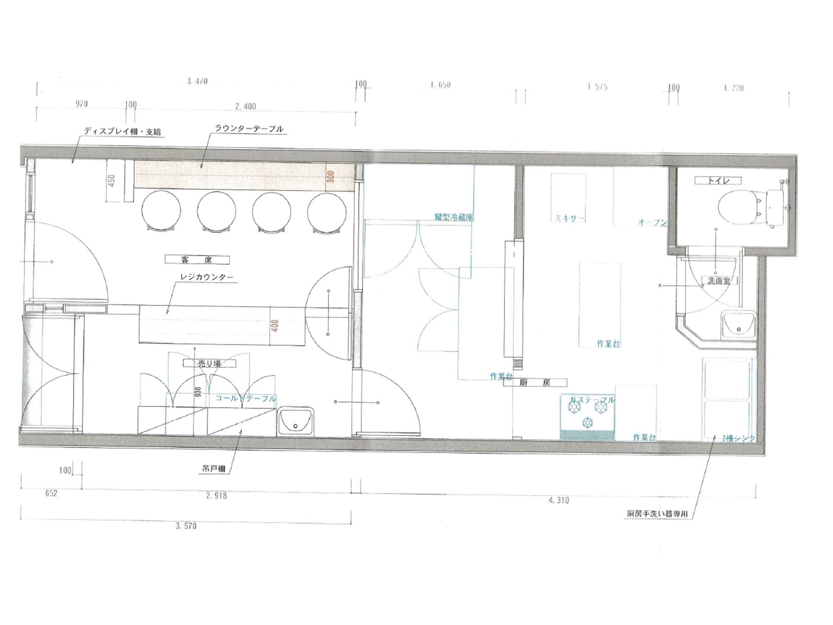
世田谷区の洋菓子の居抜き売却物件の案件情報 祖師ヶ谷大蔵徒歩10分!洋菓子店居抜き物件!

案件概要

最寄り駅

祖師ヶ谷大蔵 (小田急本線・小田原線)
徒歩10

現賃料 / 坪単価

- / 22,090

面積 坪(㎡)

7.37坪24.37m2

希望譲渡額

150万円

前業態

洋菓子

募集終了しました

案件詳細情報

所在地

東京23区 世田谷区

最寄り駅

祖師ヶ谷大蔵 (小田急本線・小田原線) 徒歩10分

現賃料 / 坪単価

- / 22,090円

階数 / 建物

地上1階 / 地上2階建

面積 坪(㎡)

7.37坪24.37m2

構造

木造

保証金・敷金

-

契約期間

3年

礼金

-

希望譲渡額

150万円

共益費 / 管理費

-

償却

-

更新料

-

情報公開日(更新日)

2023-09-01

現テナントの基本情報

業態

洋菓子

営業年数

-

営業時間

-

席数

-

コメント

-

この案件の取り扱い会社

募集終了しました

別の案件を探す
相談0円 居抜きで売却するなら、早めのご相談がおすすめです! 詳しく見る