受付時間:平日9時~17時
売却マイページ
譲渡No.9662

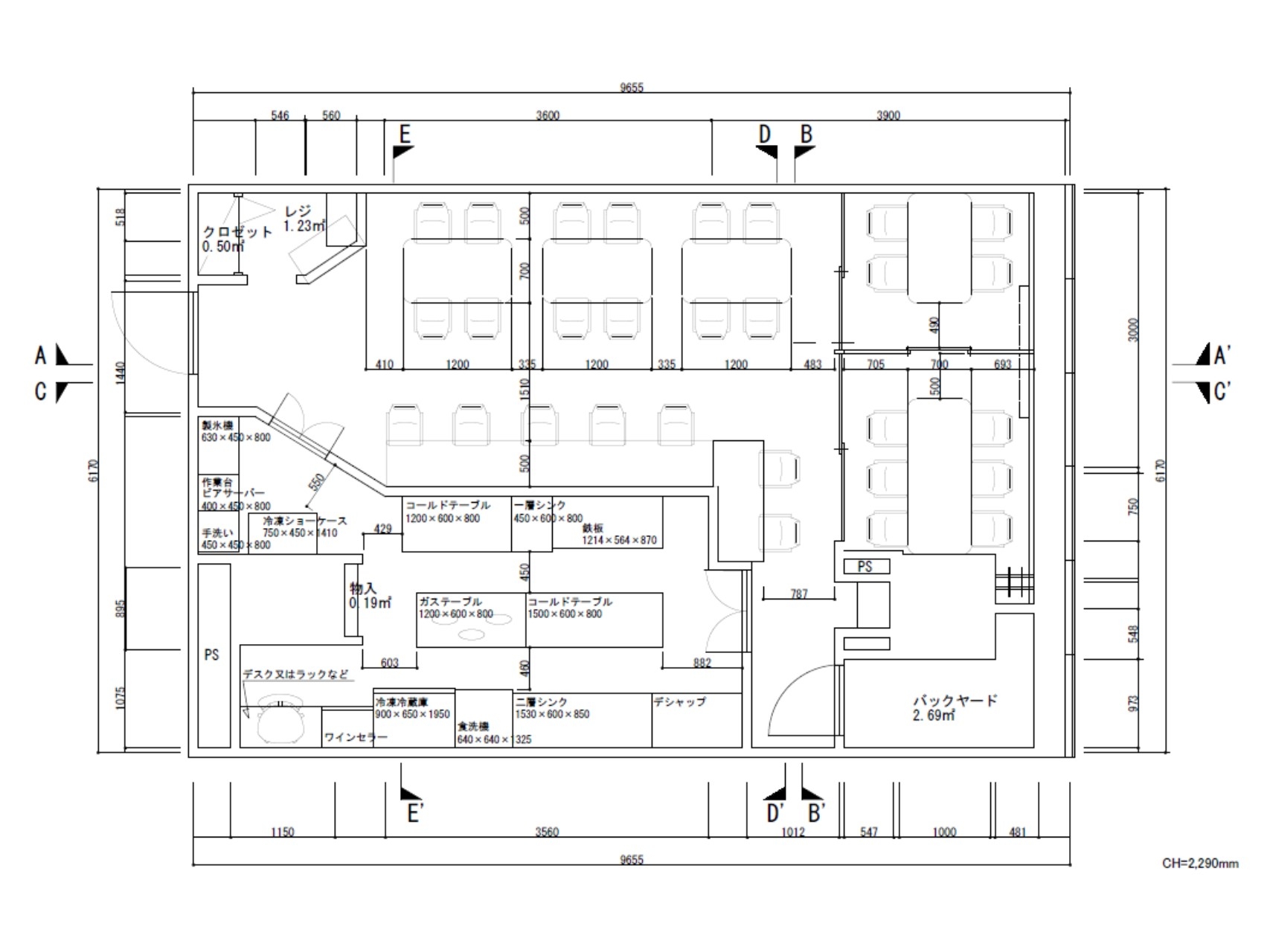
荒川区の韓国料理の居抜き売却物件の案件情報 日暮里駅徒歩2分!商業施設内韓国料理の居抜き物件!

案件概要

最寄り駅

日暮里 (JR山手線)
徒歩2

現賃料 / 坪単価

- / 15,000

面積 坪(㎡)

16.883坪55.81m2

希望譲渡額

300万円

前業態

韓国料理

募集終了しました

案件詳細情報

所在地

東京23区 荒川区

最寄り駅

日暮里 (JR山手線) 徒歩2分

日暮里 (京成本線) 徒歩2分

現賃料 / 坪単価

- / 15,000円

階数 / 建物

地上3階 / 地上40地下2階建

面積 坪(㎡)

16.883坪55.81m2

構造

鉄筋コンクリート造

保証金・敷金

-

契約期間

普通借3年

礼金

-

希望譲渡額

300万円

共益費 / 管理費

-

償却

-

更新料

-

情報公開日(更新日)

2023-03-16

売却テナントの基本情報

業態

韓国料理

営業年数

-

営業時間

-

席数

-

コメント

-

この案件の取り扱い会社

募集終了しました

別の案件を探す
相談0円 居抜きで売却するなら、早めのご相談がおすすめです! 詳しく見る