受付時間:平日9時~17時
売却マイページ
譲渡No.8844

大阪市中央区のからあげ店の居抜き売却物件の案件情報 玉造駅徒歩1分!テイクアウト専門店居抜き譲渡物件

案件概要

最寄り駅

玉造 (JR大阪環状線)
徒歩1

現賃料 / 坪単価

- / 14,201

面積 坪(㎡)

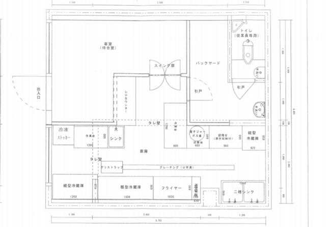
8.45坪27.934m2

希望譲渡額

150万円

前業態

からあげ店

募集終了しました

案件詳細情報

所在地

大阪府 大阪市中央区

最寄り駅

玉造 (JR大阪環状線) 徒歩1分

現賃料 / 坪単価

- / 14,201円

階数 / 建物

地上1階 / 地上8階建

面積 坪(㎡)

8.45坪27.934m2

構造

鉄骨造

保証金・敷金

-

契約期間

普通2年

礼金

-

希望譲渡額

150万円

共益費 / 管理費

-

償却

-

更新料

-

情報公開日(更新日)

2021-06-21

現テナントの基本情報

業態

からあげ店

営業年数

-

営業時間

-

席数

-

コメント

-

この案件の取り扱い会社

募集終了しました

別の案件を探す
相談0円 居抜きで売却するなら、早めのご相談がおすすめです! 詳しく見る