受付時間:平日9時~17時
売却マイページ
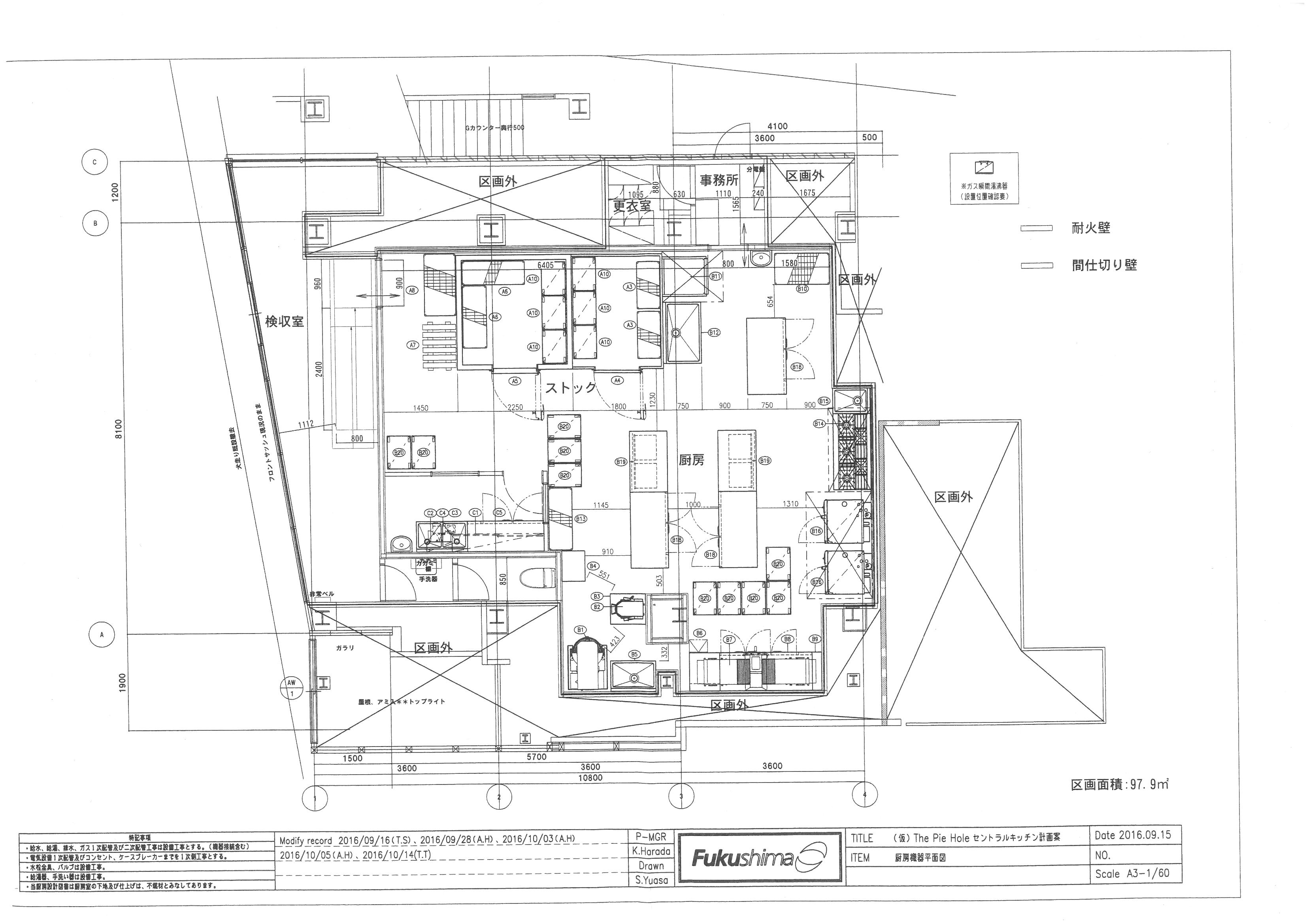
譲渡No.8132

荒川区のセントラルキッチンの居抜き売却物件の案件情報 状態良好なセントラルキッチン居抜き!

案件概要

最寄り駅

田端 (JR山手線)
徒歩12

現賃料 / 坪単価

- / 8,305

面積 坪(㎡)

36.12坪119.41m2

希望譲渡額

相談

前業態

セントラルキッチン

募集終了しました

案件詳細情報

所在地

東京23区 荒川区

最寄り駅

田端 (JR山手線) 徒歩12分

現賃料 / 坪単価

- / 8,305円

階数 / 建物

地上1階 / 地上3階建

面積 坪(㎡)

36.12坪119.41m2

構造

木造・鉄骨造

保証金・敷金

-

契約期間

3年

礼金

-

希望譲渡額

相談

共益費 / 管理費

-

償却

-

更新料

-

情報公開日(更新日)

2019-12-10

売却テナントの基本情報

業態

セントラルキッチン

営業年数

-

営業時間

-

席数

-

コメント

-

この案件の取り扱い会社

募集終了しました

別の案件を探す
相談0円 居抜きで売却するなら、早めのご相談がおすすめです! 詳しく見る