受付時間:平日9時~17時
売却マイページ
譲渡No.7667

台東区の中華料理の居抜き売却物件の案件情報 浅草ビューホテル目の前!国際通り沿いの1階路面店の角地。建物間口15M。

案件概要

最寄り駅

浅草 (つくばエクスプレス)
徒歩1

現賃料 / 坪単価

- / 31,597

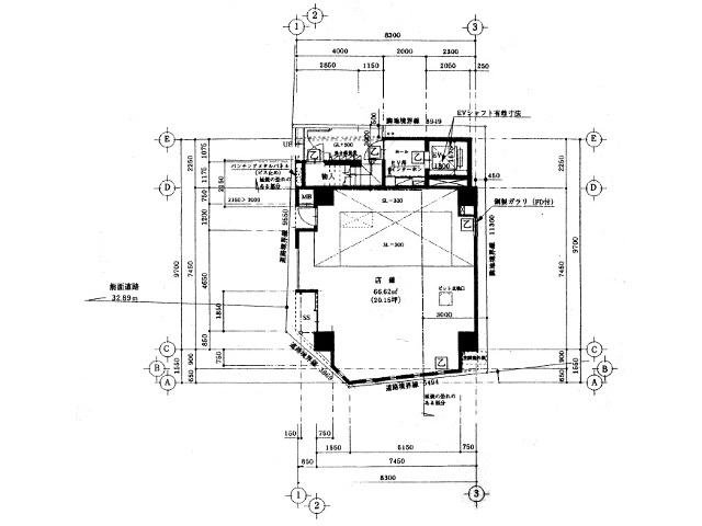
面積 坪(㎡)

20.44坪67.58m2

希望譲渡額

213.84万円

前業態

中華料理

募集終了しました

案件詳細情報

所在地

東京23区 台東区

最寄り駅

浅草 (つくばエクスプレス) 徒歩1分

浅草 (東京メトロ銀座線) 徒歩8分

現賃料 / 坪単価

- / 31,597円

階数 / 建物

地上1階 /

面積 坪(㎡)

20.44坪67.58m2

構造

鉄筋鉄骨コンクリート造

保証金・敷金

-

契約期間

3年

礼金

-

希望譲渡額

213.84万円

共益費 / 管理費

-

償却

-

更新料

-

情報公開日(更新日)

2019-02-14

現テナントの基本情報

業態

中華料理

営業年数

-

営業時間

-

席数

-

コメント

-

この案件の取り扱い会社

募集終了しました

別の案件を探す
相談0円 居抜きで売却するなら、早めのご相談がおすすめです! 詳しく見る