受付時間:平日9時~17時
売却マイページ
譲渡No.7652

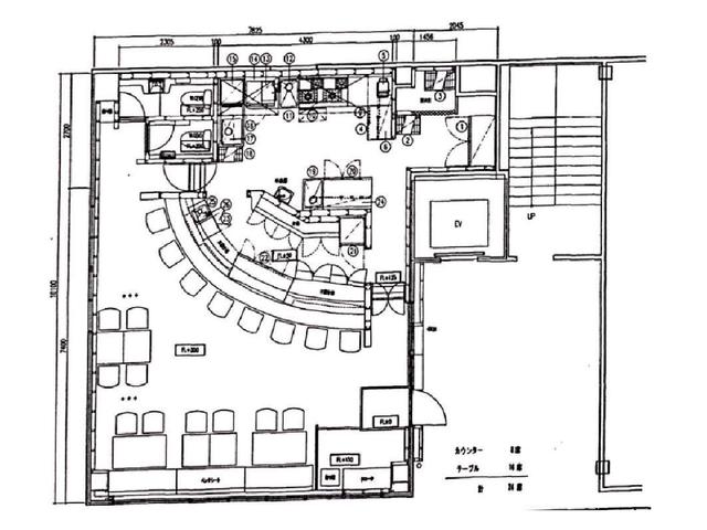
千葉市中央区のフレンチレストランの居抜き売却物件の案件情報 駅徒歩6分!フランス料理店の居抜き店舗!

案件概要

最寄り駅

千葉 (JR総武線)
徒歩6

現賃料 / 坪単価

- / 14,904

面積 坪(㎡)

25.362坪83.84m2

希望譲渡額

800万円

前業態

フレンチレストラン

募集終了しました

案件詳細情報

所在地

千葉県 千葉市中央区

最寄り駅

千葉 (JR総武線) 徒歩6分

京成千葉 (京成千葉線) 徒歩4分

現賃料 / 坪単価

- / 14,904円

階数 / 建物

地上2階 / 地上5階建

面積 坪(㎡)

25.362坪83.84m2

構造

鉄骨造

保証金・敷金

-

契約期間

3年

礼金

-

希望譲渡額

800万円

共益費 / 管理費

-

償却

-

更新料

-

情報公開日(更新日)

2019-07-19

現テナントの基本情報

業態

フレンチレストラン

営業年数

-

営業時間

-

席数

-

コメント

-

この案件の取り扱い会社

募集終了しました