受付時間:平日9時~17時
売却マイページ
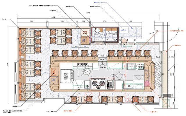
譲渡No.7607

台東区のイタリア料理の居抜き売却物件の案件情報 浅草、1階路面の居抜き!西参道入口(ホッピー通り側)至近。業態制限なし。

案件概要

最寄り駅

浅草 (つくばエクスプレス)
徒歩2

現賃料 / 坪単価

- / 47,368

面積 坪(㎡)

14.82坪49.0m2

希望譲渡額

378万円

前業態

イタリア料理

募集終了しました

案件詳細情報

所在地

東京23区 台東区

最寄り駅

浅草 (つくばエクスプレス) 徒歩2分

田原町 (東京メトロ銀座線) 徒歩7分

現賃料 / 坪単価

- / 47,368円

階数 / 建物

地上1階 /

面積 坪(㎡)

14.82坪49.0m2

構造

木造

保証金・敷金

-

契約期間

3年

礼金

-

希望譲渡額

378万円

共益費 / 管理費

-

償却

-

更新料

-

情報公開日(更新日)

2019-01-21

売却テナントの基本情報

業態

イタリア料理

営業年数

-

営業時間

-

席数

-

コメント

-

この案件の取り扱い会社

募集終了しました

別の案件を探す
相談0円 居抜きで売却するなら、早めのご相談がおすすめです! 詳しく見る