受付時間:平日9時~17時
売却マイページ
譲渡No.7599

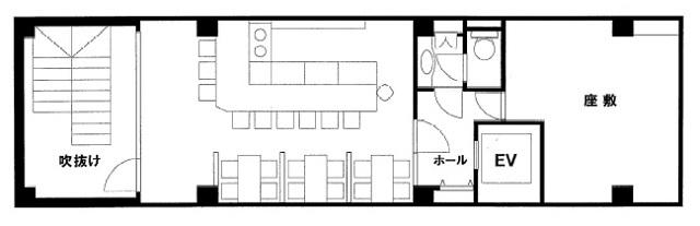
台東区の居酒屋の居抜き売却物件の案件情報 田原町駅徒歩1分。地下1階(専用階段あり)の居抜き物件!業態制限、営業時間制限ありません。

案件概要

最寄り駅

田原町 (東京メトロ銀座線)
徒歩1

現賃料 / 坪単価

- / 19,421

面積 坪(㎡)

20.02坪66.18m2

希望譲渡額

相談

前業態

居酒屋

募集終了しました

案件詳細情報

所在地

東京23区 台東区

最寄り駅

田原町 (東京メトロ銀座線) 徒歩1分

浅草 (つくばエクスプレス) 徒歩6分

現賃料 / 坪単価

- / 19,421円

階数 / 建物

地下1階 /

面積 坪(㎡)

20.02坪66.18m2

構造

鉄骨造

保証金・敷金

-

契約期間

3年

礼金

-

希望譲渡額

相談

共益費 / 管理費

-

償却

-

更新料

-

情報公開日(更新日)

2019-01-18

売却テナントの基本情報

業態

居酒屋

営業年数

-

営業時間

-

席数

-

コメント

-

この案件の取り扱い会社

募集終了しました

別の案件を探す
相談0円 居抜きで売却するなら、早めのご相談がおすすめです! 詳しく見る