受付時間:平日9時~17時
売却マイページ
譲渡No.7520

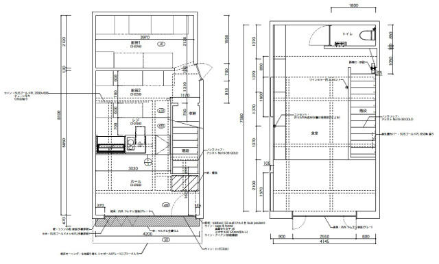
渋谷区のイタリア料理の居抜き売却物件の案件情報 広尾エリア!1階・2階一括貸しの美内装居抜き物件

案件概要

最寄り駅

広尾 (東京メトロ日比谷線)
徒歩4

現賃料 / 坪単価

- / 27,787

面積 坪(㎡)

17.49坪57.84m2

希望譲渡額

540万円

前業態

イタリア料理

募集終了しました

案件詳細情報

所在地

東京23区 渋谷区

最寄り駅

広尾 (東京メトロ日比谷線) 徒歩4分

現賃料 / 坪単価

- / 27,787円

階数 / 建物

地上1-地上2階 /

面積 坪(㎡)

17.49坪57.84m2

構造

木造

保証金・敷金

-

契約期間

3年

礼金

-

希望譲渡額

540万円

共益費 / 管理費

-

償却

-

更新料

-

情報公開日(更新日)

2018-12-07

現テナントの基本情報

業態

イタリア料理

営業年数

-

営業時間

-

席数

-

コメント

-

この案件の取り扱い会社

募集終了しました

別の案件を探す
相談0円 居抜きで売却するなら、早めのご相談がおすすめです! 詳しく見る