受付時間:平日9時~17時
売却マイページ
譲渡No.6707

目黒区のカフェの居抜き売却物件の案件情報 自由通りの商店街沿い!内装が綺麗なカフェ居抜きです

案件概要

最寄り駅

自由が丘 (東急東横線)
徒歩4

現賃料 / 坪単価

- / 35,821

面積 坪(㎡)

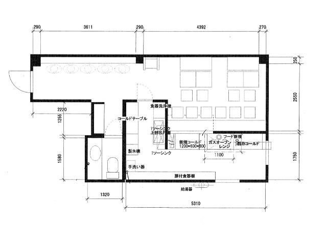
9.22坪30.5m2

希望譲渡額

162万円

前業態

カフェ

募集終了しました

案件詳細情報

所在地

東京23区 目黒区

最寄り駅

自由が丘 (東急東横線) 徒歩4分

現賃料 / 坪単価

- / 35,821円

階数 / 建物

地上1階 /

面積 坪(㎡)

9.22坪30.5m2

構造

鉄筋鉄骨コンクリート(SRC)造

保証金・敷金

-

契約期間

3年

礼金

-

希望譲渡額

162万円

共益費 / 管理費

-

償却

-

更新料

-

情報公開日(更新日)

2017-12-05

現テナントの基本情報

業態

カフェ

営業年数

-

営業時間

-

席数

-

コメント

-

この案件の取り扱い会社

募集終了しました

別の案件を探す
相談0円 居抜きで売却するなら、早めのご相談がおすすめです! 詳しく見る