受付時間:平日9時~17時
売却マイページ
譲渡No.6263

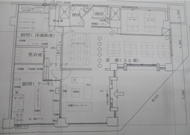
横浜市都筑区のパティスリー&ダイニングの居抜き売却物件の案件情報 仲町台駅から徒歩2分!視認性良好な洋菓子テイクアウト&ダイニング居抜き店舗

案件概要

最寄り駅

仲町台 (横浜市営地下鉄)
徒歩2

現賃料 / 坪単価

- / 10,241

面積 坪(㎡)

43.94坪145.24m2

希望譲渡額

50万円

前業態

パティスリー&ダイニング

募集終了しました

案件詳細情報

所在地

神奈川県 横浜市都筑区

最寄り駅

仲町台 (横浜市営地下鉄) 徒歩2分

現賃料 / 坪単価

- / 10,241円

階数 / 建物

地上1階 / 地上6階建

面積 坪(㎡)

43.94坪145.24m2

構造

鉄筋コンクリート造

保証金・敷金

-

契約期間

3年間

礼金

-

希望譲渡額

50万円

共益費 / 管理費

-

償却

-

更新料

-

情報公開日(更新日)

2017-01-10

売却テナントの基本情報

業態

パティスリー&ダイニング

営業年数

-

営業時間

-

席数

-

コメント

-

この案件の取り扱い会社

募集終了しました

別の案件を探す
相談0円 居抜きで売却するなら、早めのご相談がおすすめです! 詳しく見る