受付時間:平日9時~17時
売却マイページ
譲渡No.6234

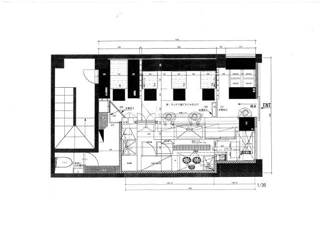
台東区の居酒屋の居抜き売却物件の案件情報 美内装!多数雑誌で取り上げられているたぬき通り商店街沿い1階路面店舗

案件概要

最寄り駅

浅草 (東京メトロ銀座線)
徒歩4

現賃料 / 坪単価

- / 32,185

面積 坪(㎡)

10.57坪34.94m2

希望譲渡額

194.4万円

前業態

居酒屋

募集終了しました

案件詳細情報

所在地

東京23区 台東区

最寄り駅

浅草 (東京メトロ銀座線) 徒歩4分

浅草 (都営浅草線) 徒歩4分

現賃料 / 坪単価

- / 32,185円

階数 / 建物

地上1階 /

面積 坪(㎡)

10.57坪34.94m2

構造

鉄筋コンクリート造

保証金・敷金

-

契約期間

2年

礼金

-

希望譲渡額

194.4万円

共益費 / 管理費

-

償却

-

更新料

-

情報公開日(更新日)

2016-11-29

売却テナントの基本情報

業態

居酒屋

営業年数

-

営業時間

-

席数

-

コメント

-

この案件の取り扱い会社

募集終了しました

別の案件を探す
相談0円 居抜きで売却するなら、早めのご相談がおすすめです! 詳しく見る