受付時間:平日9時~17時
売却マイページ
譲渡No.6223

葛飾区の居酒屋の居抜き売却物件の案件情報 新小岩駅南口徒歩2分!居酒屋居抜き店舗

案件概要

最寄り駅

新小岩 (JR総武線)
徒歩2

現賃料 / 坪単価

- / 21,172

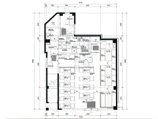
面積 坪(㎡)

22.19坪73.36m2

希望譲渡額

183.6万円

前業態

居酒屋

募集終了しました

案件詳細情報

所在地

東京23区 葛飾区

最寄り駅

新小岩 (JR総武線) 徒歩2分

現賃料 / 坪単価

- / 21,172円

階数 / 建物

地上1階 /

面積 坪(㎡)

22.19坪73.36m2

構造

鉄骨造

保証金・敷金

-

契約期間

3年

礼金

-

希望譲渡額

183.6万円

共益費 / 管理費

-

償却

-

更新料

-

情報公開日(更新日)

2016-09-21

現テナントの基本情報

業態

居酒屋

営業年数

-

営業時間

-

席数

-

コメント

-

この案件の取り扱い会社

募集終了しました

別の案件を探す
相談0円 居抜きで売却するなら、早めのご相談がおすすめです! 詳しく見る