受付時間:平日9時~17時
売却マイページ
譲渡No.5740

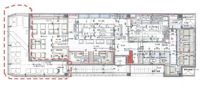
渋谷区のダイニングレストランの居抜き売却物件の案件情報 人気の恵比寿エリア!別途10.71坪のテラスがご利用いただけます。

案件概要

最寄り駅

恵比寿 (東京メトロ日比谷線)
徒歩2

現賃料 / 坪単価

- / 35,412

面積 坪(㎡)

41.02坪135.6m2

希望譲渡額

108万円

前業態

ダイニングレストラン

募集終了しました

案件詳細情報

所在地

東京23区 渋谷区

最寄り駅

恵比寿 (東京メトロ日比谷線) 徒歩2分

恵比寿 (JR山手線) 徒歩3分

現賃料 / 坪単価

- / 35,412円

階数 / 建物

地上3階 /

面積 坪(㎡)

41.02坪135.6m2

構造

鉄筋鉄骨造

保証金・敷金

-

契約期間

3年

礼金

-

希望譲渡額

108万円

共益費 / 管理費

-

償却

-

更新料

-

情報公開日(更新日)

2015-10-06

売却テナントの基本情報

業態

ダイニングレストラン

営業年数

-

営業時間

-

席数

-

コメント

-

この案件の取り扱い会社

募集終了しました

別の案件を探す
相談0円 居抜きで売却するなら、早めのご相談がおすすめです! 詳しく見る