受付時間:平日9時~17時
売却マイページ
譲渡No.5298

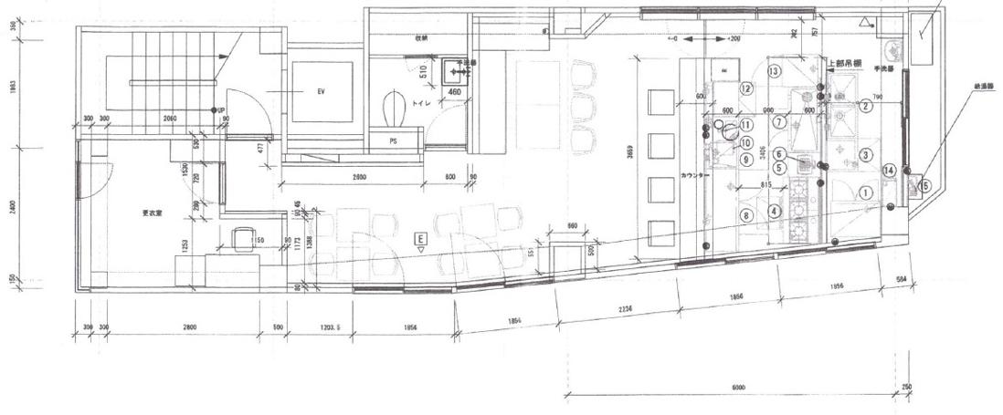
渋谷区のワインバーの居抜き売却物件の案件情報 代々木公園駅すぐ、2駅利用可能!ワインバーの居抜き店舗です!

案件概要

最寄り駅

代々木公園 (東京メトロ千代田線)
徒歩2

現賃料 / 坪単価

- / 14,909

面積 坪(㎡)

18.11坪59.87m2

希望譲渡額

291.6万円

前業態

ワインバー

募集終了しました

案件詳細情報

所在地

東京23区 渋谷区

最寄り駅

代々木公園 (東京メトロ千代田線) 徒歩2分

現賃料 / 坪単価

- / 14,909円

階数 / 建物

地上3階 / 地上5階建

面積 坪(㎡)

18.11坪59.87m2

構造

鉄骨鉄筋コンクリート造

保証金・敷金

-

契約期間

2年

礼金

-

希望譲渡額

291.6万円

共益費 / 管理費

-

償却

-

更新料

-

情報公開日(更新日)

2015-02-13

売却テナントの基本情報

業態

ワインバー

営業年数

-

営業時間

-

席数

-

コメント

-

この案件の取り扱い会社

募集終了しました

別の案件を探す
相談0円 居抜きで売却するなら、早めのご相談がおすすめです! 詳しく見る