受付時間:平日9時~17時
売却マイページ
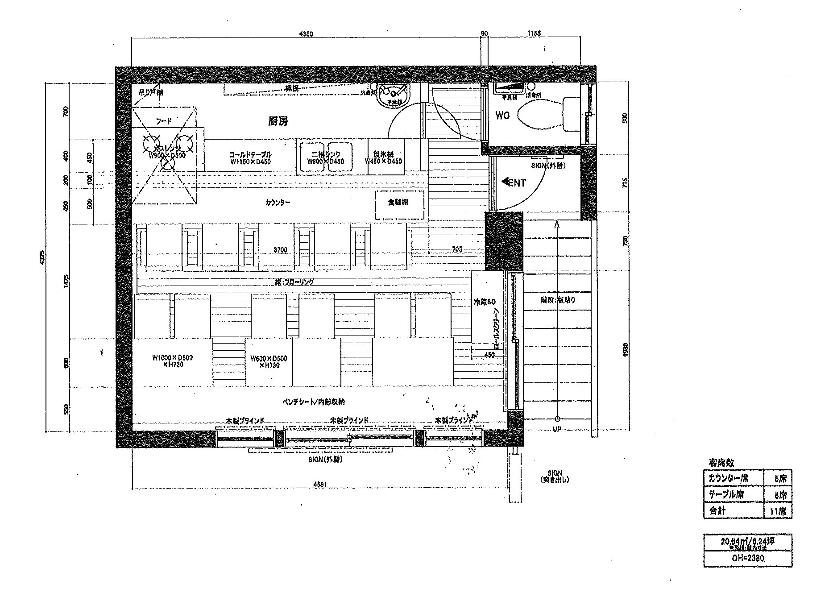
譲渡No.4830

目黒区のビストロの居抜き売却物件の案件情報 専用階段あり!内装美装!独立を検討されている方に最適な小箱店舗です!

案件概要

最寄り駅

自由が丘 (東急東横線)
徒歩3

現賃料 / 坪単価

- / 20,833

面積 坪(㎡)

6.24坪20.63m2

希望譲渡額

166.66万円

前業態

ビストロ

募集終了しました

案件詳細情報

所在地

東京23区 目黒区

最寄り駅

自由が丘 (東急東横線) 徒歩3分

自由が丘 (東急大井町線) 徒歩3分

現賃料 / 坪単価

- / 20,833円

階数 / 建物

地上2階 / 地上2階建

面積 坪(㎡)

6.24坪20.63m2

構造

木造

保証金・敷金

-

契約期間

3年

礼金

-

希望譲渡額

166.66万円

共益費 / 管理費

-

償却

-

更新料

-

情報公開日(更新日)

2014-04-10

現テナントの基本情報

業態

ビストロ

営業年数

-

営業時間

-

席数

-

コメント

-

この案件の取り扱い会社

募集終了しました

別の案件を探す
相談0円 居抜きで売却するなら、早めのご相談がおすすめです! 詳しく見る