受付時間:平日9時~17時
売却マイページ
譲渡No.379

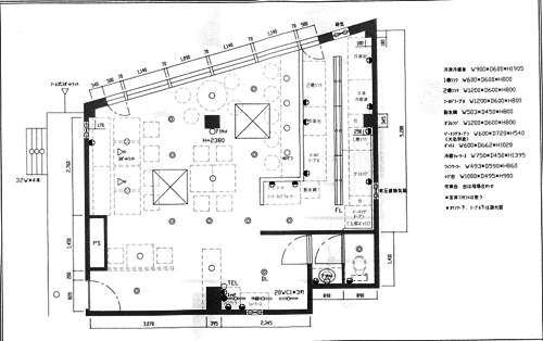
葛飾区のカフェの居抜き売却物件の案件情報 諸条件はご相談ください

案件概要

最寄り駅

堀切菖蒲園 (京成本線)
徒歩1

現賃料 / 坪単価

- / 8,400

面積 坪(㎡)

15坪50.0m2

希望譲渡額

250万円

前業態

カフェ

募集終了しました

案件詳細情報

所在地

東京23区 葛飾区

最寄り駅

堀切菖蒲園 (京成本線) 徒歩1分

現賃料 / 坪単価

- / 8,400円

階数 / 建物

地上2階 / 地上4階建

面積 坪(㎡)

15坪50.0m2

構造

鉄骨ALC造

保証金・敷金

-

契約期間

5年

礼金

-

希望譲渡額

250万円

共益費 / 管理費

-

償却

-

更新料

-

情報公開日(更新日)

2008-05-19

現テナントの基本情報

業態

カフェ

営業年数

-

営業時間

-

席数

-

コメント

-

この案件の取り扱い会社

募集終了しました

別の案件を探す
相談0円 居抜きで売却するなら、早めのご相談がおすすめです! 詳しく見る