受付時間:平日9時~17時
売却マイページ
譲渡No.12109

東大阪市の居酒屋の居抜き売却物件の案件情報 吉田駅から徒歩3分!居酒屋居抜き物件!

案件概要

最寄り駅

吉田 (近鉄けいはんな線)
徒歩3

現賃料 / 坪単価

14.3万円 / 10,063

面積 坪(㎡)

14.21坪46.98m2

希望譲渡額

350万円

前業態

居酒屋

この案件へ問い合わせる

問い合わせには飲食店ドットコム会員登録が必要です。
無料会員登録ログイン

案件詳細情報

所在地

大阪府 東大阪市

最寄り駅

吉田 (近鉄けいはんな線) 徒歩3分

現賃料 / 坪単価

14.3万円 / 10,063円

階数 / 建物

地上1階 / 地上9階建

面積 坪(㎡)

14.21坪46.98m2

構造

鉄筋コンクリート造

保証金・敷金

0ヶ月

契約期間

2年

礼金

0ヶ月

希望譲渡額

350万円

共益費 / 管理費

0円/月

償却

更新料

なし

情報公開日(更新日)

2026-02-27

現テナントの基本情報

業態

居酒屋

営業年数

5年

営業時間

18:00 - 23:00

席数

22席

コメント

譲渡金額が減額になりました!440万円→350万円!
吉田駅から徒歩3分!居酒屋居抜き物件!
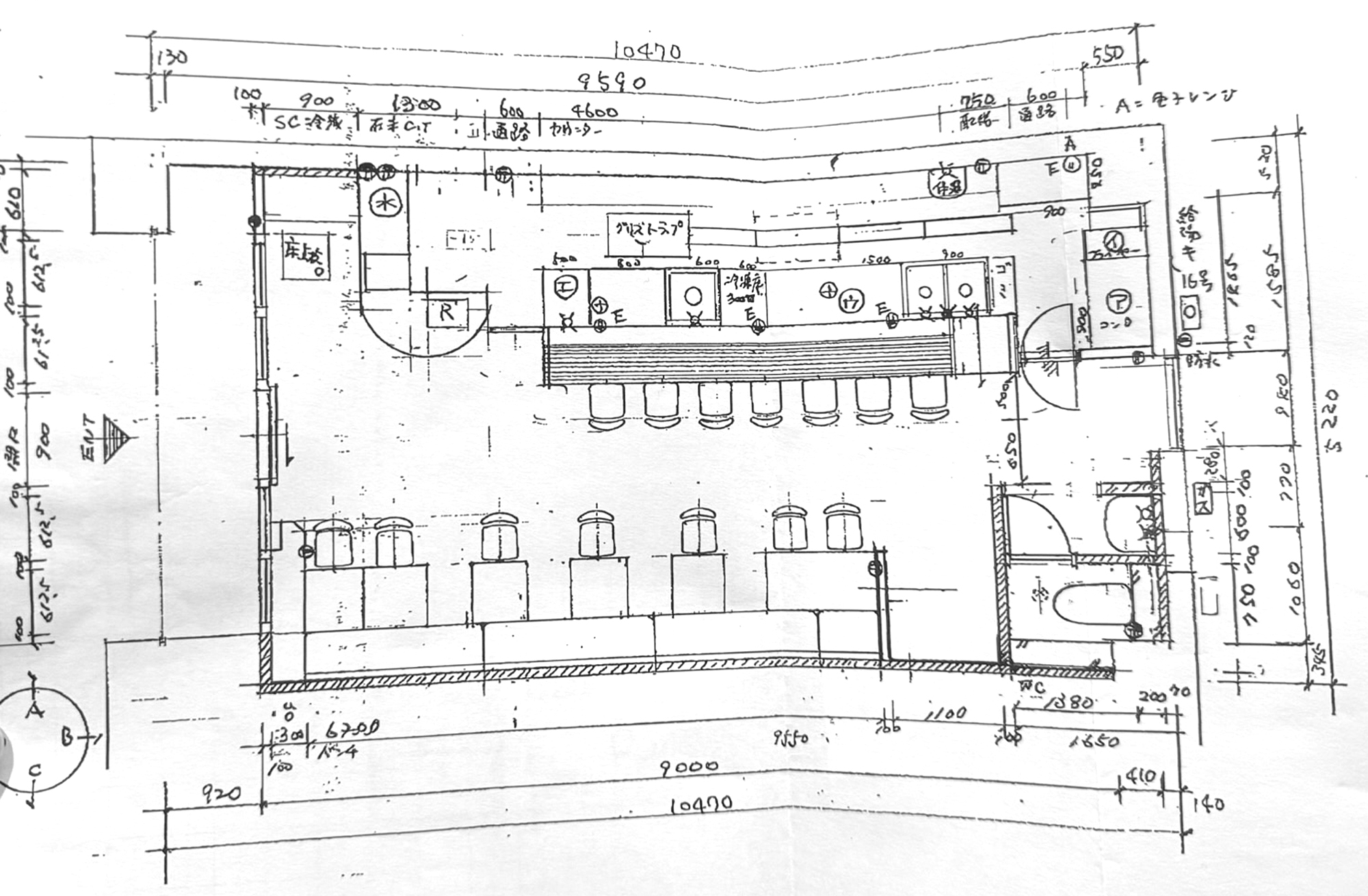
・大型ショーケース、冷凍冷蔵庫、食洗機、コンロ、製氷機
 など、しっかりした装備が揃っています。
・重飲食も可能です。
・4人テーブル×4,6人カウンター、合計22席
・現契約条件につき、新契約では変更の可能性あり
・家賃保証、店舗総合保険の加入が必須です。
・企画料1ヵ月分。造作譲渡手数料10%
--------------------------------------------------------------------------------
※賃貸条件については現状のものとなりますので、変更の可能性があります。
※取扱会社規定の賃貸借契約手数料、譲渡契約手数料が発生します。
※現在営業中の店舗もありますので、店舗への連絡、従業員及び、関係者への物件に関するお問い合せ、
写真撮影、店内での本物件に関する話題等、営業に支障をきたす行為は固く禁止致します。

この案件の取り扱い会社

株式会社フードビジネスロード

東京都大田区西蒲田7-65-9

担当者:渡邊 元

この案件へ問い合わせる

問い合わせには飲食店ドットコム会員登録が必要です。
無料会員登録ログイン

別の案件を探す
相談0円 居抜きで売却するなら、早めのご相談がおすすめです! 詳しく見る