受付時間:平日9時~17時
売却マイページ
譲渡No.11789

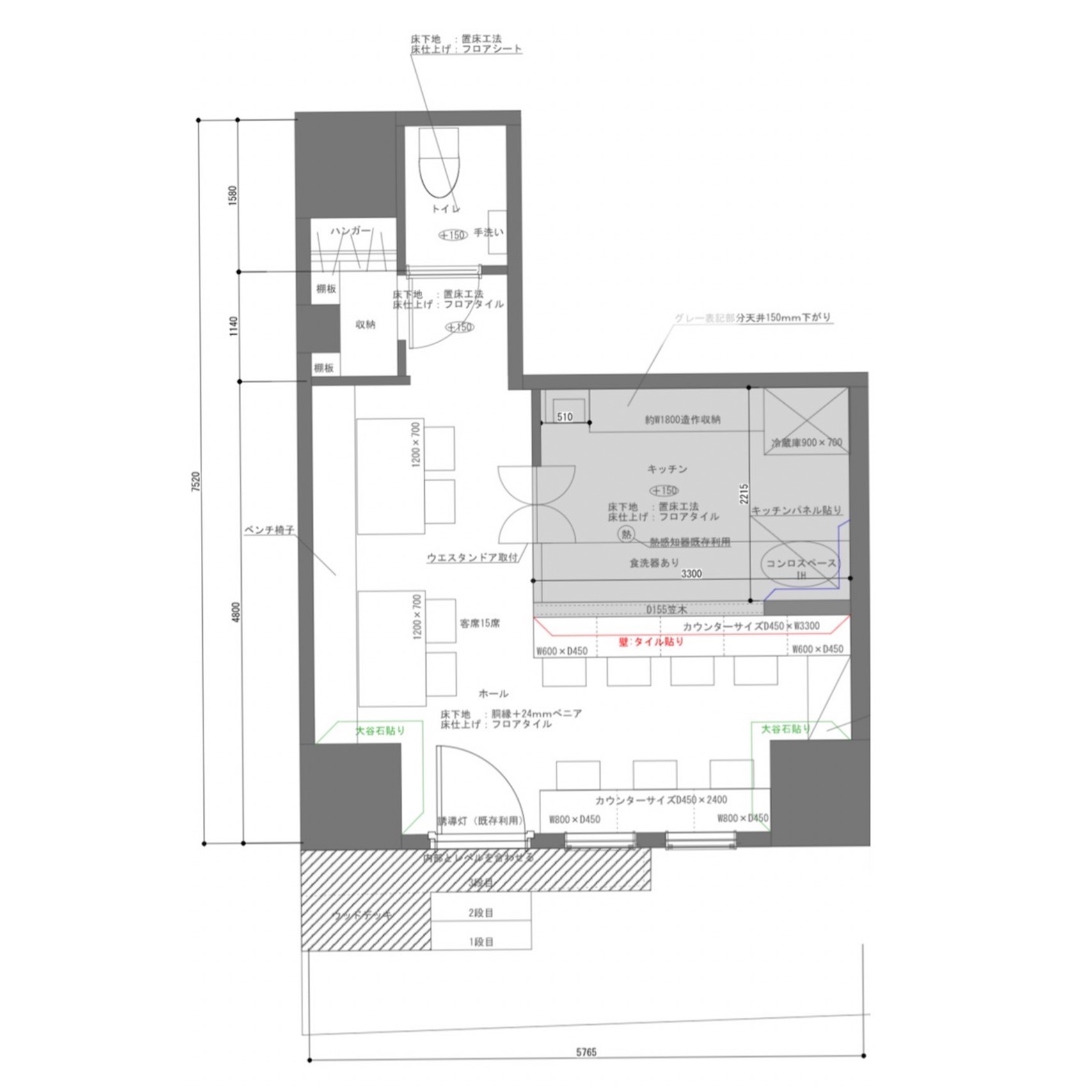
八王子市の カフェの居抜き売却物件の案件情報 京王八王子駅徒歩3分!カフェ居抜き物件!

この案件の反響

ご相談から募集開始までの期間

75日

問い合わせ数

2件

募集開始から売却までの期間

79日

案件概要

最寄り駅

京王八王子 (京王本線)
徒歩3

現賃料 / 坪単価

- / 22,732

面積 坪(㎡)

10.14坪33.55m2

希望譲渡額

250万円

前業態

 カフェ

募集終了しました

案件詳細情報

所在地

東京都下 八王子市

最寄り駅

京王八王子 (京王本線) 徒歩3分

八王子 (JR中央線) 徒歩10分

現賃料 / 坪単価

- / 22,732円

階数 / 建物

地上1階 / 地上13階建

面積 坪(㎡)

10.14坪33.55m2

構造

RC造

保証金・敷金

-

契約期間

2年

礼金

-

希望譲渡額

250万円

共益費 / 管理費

-

償却

-

更新料

-

情報公開日(更新日)

2025-09-02

売却テナントの基本情報

業態

 カフェ

営業年数

2.5年

営業時間

10:00 - 18:30

席数

コメント

譲渡額が減額になりました!350万円→250万円!
京王八王子駅徒歩3分!カフェ居抜き物件!
甲州街道沿いの1階路面店舗!
重飲食不可となっております。
・ダクト・グリスト無し 
・一般換気
※保証会社・火災保険必須 
※電灯50A、動力60A、ガス4号
詳しくはお問い合わせください。
--------------------------------------------------------------------------------
※賃貸条件については現状のものとなりますので、変更の可能性があります。
※取扱会社規定の賃貸借契約手数料、譲渡契約手数料が発生します。
※現在営業中の店舗もありますので、店舗への連絡、従業員及び、関係者への物件に関するお問い合せ、
写真撮影、店内での本物件に関する話題等、営業に支障をきたす行為は固く禁止致します。

この案件の取り扱い会社

募集終了しました

あなたにおすすめの案件

別の案件を探す
相談0円 居抜きで売却するなら、早めのご相談がおすすめです! 詳しく見る