受付時間:平日9時~17時
売却マイページ
譲渡No.10684

目黒区のイタリアンの居抜き売却物件の案件情報 自由が丘駅徒歩5分!イタリアン居抜き物件!

この案件の反響

ご相談から募集開始までの期間

23日

問い合わせ数

10件

募集開始から売却までの期間

非公開

案件概要

最寄り駅

自由が丘 (東急東横線)
徒歩5

現賃料 / 坪単価

- / 27,836

面積 坪(㎡)

22.13坪73.15m2

希望譲渡額

150万円

前業態

イタリアン

募集終了しました

案件詳細情報

所在地

東京23区 目黒区

最寄り駅

自由が丘 (東急東横線) 徒歩5分

自由が丘 (東急大井町線) 徒歩5分

現賃料 / 坪単価

- / 27,836円

階数 / 建物

地上2階 / 地上3階建

面積 坪(㎡)

22.13坪73.15m2

構造

鉄骨造

保証金・敷金

-

契約期間

普通3年

礼金

-

希望譲渡額

150万円

共益費 / 管理費

-

償却

-

更新料

-

情報公開日(更新日)

2024-06-19

売却テナントの基本情報

業態

イタリアン

営業年数

5年

営業時間

11:30 - 15:00
17:00 - 22:00

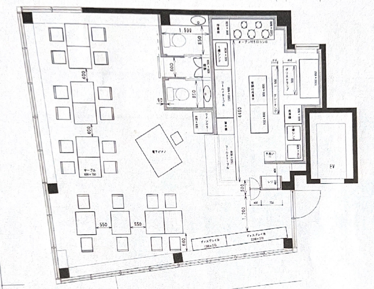
席数

16席

コメント

譲渡金額が減額になりました!200万円→150万円!
自由が丘駅徒歩5分!イタリアン居抜き物件!
ヒルサイド通りに面したビル内店舗!専用階段有!
営業年数:スケルトンから5年
リース品:無
撤去物:ピアノ、ワインセラー、ビネガー棚、備品一部
懸念トラブル:無
業態制限:無
営業時間制限:無
席数:テーブル20席
電気容量:電灯50A 動力50A
ガス:6号
ダクト:直吹き
グリスト:埋設
防水:有
※詳しくはお問い合わせください。
--------------------------------------------------------------------------------
※賃貸条件については現状のものとなりますので、変更の可能性があります。
※取扱会社規定の賃貸借契約手数料、譲渡契約手数料が発生します。
※現在営業中の店舗もありますので、店舗への連絡、従業員及び、関係者への物件に関するお問い合せ、
写真撮影、店内での本物件に関する話題等、営業に支障をきたす行為は固く禁止致します。

この案件の取り扱い会社

募集終了しました

あなたにおすすめの案件

別の案件を探す
相談0円 居抜きで売却するなら、早めのご相談がおすすめです! 詳しく見る