受付時間:平日9時~17時
売却マイページ
譲渡No.9714

日進市の 喫茶店の居抜き売却物件の案件情報 日進市!ロードサイド喫茶店居抜き物件!

案件概要

最寄り駅

赤池 (名古屋市営鶴舞線)
徒歩20

現賃料 / 坪単価

- / 3,341

面積 坪(㎡)

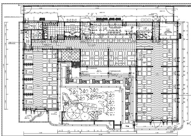
179.594坪593.7m2

希望譲渡額

800万円

前業態

 喫茶店

募集終了しました

案件詳細情報

所在地

愛知県 日進市

最寄り駅

赤池 (名古屋市営鶴舞線) 徒歩20分

現賃料 / 坪単価

- / 3,341円

階数 / 建物

地上1-地上2階 / 地上2階建

面積 坪(㎡)

179.594坪593.7m2

構造

保証金・敷金

-

契約期間

相談

礼金

-

希望譲渡額

800万円

共益費 / 管理費

-

償却

-

更新料

-

情報公開日(更新日)

2023-04-30

現テナントの基本情報

業態

 喫茶店

営業年数

-

営業時間

-

席数

-

コメント

-

この案件の取り扱い会社

募集終了しました

相談0円 居抜きで売却するなら、早めのご相談がおすすめです! 詳しく見る