受付時間:平日9時~17時
売却マイページ
譲渡No.11277

八尾市のカフェの居抜き売却物件の案件情報 河内山本駅から徒歩3分、ベーカリーカフェ居抜き物件!

案件概要

最寄り駅

河内山本 (近鉄大阪線)
徒歩3

現賃料 / 坪単価

30.8万円 / 11,311

面積 坪(㎡)

27.23坪90.03m2

希望譲渡額

200万円

前業態

カフェ

この案件へ問い合わせる

問い合わせには飲食店ドットコム会員登録が必要です。
無料会員登録ログイン

案件詳細情報

所在地

大阪府 八尾市

最寄り駅

河内山本 (近鉄大阪線) 徒歩3分

現賃料 / 坪単価

30.8万円 / 11,311円

階数 / 建物

地上1階 / 地上2階建

面積 坪(㎡)

27.23坪90.03m2

構造

軽量鉄骨造

保証金・敷金

3ヶ月

契約期間

2年

礼金

1ヶ月

希望譲渡額

200万円

共益費 / 管理費

0円/月

償却

1ヵ月分

更新料

なし

情報公開日(更新日)

2026-03-02

売却テナントの基本情報

業態

カフェ

営業年数

16年

営業時間

09:00 - 17:00

席数

31席

コメント

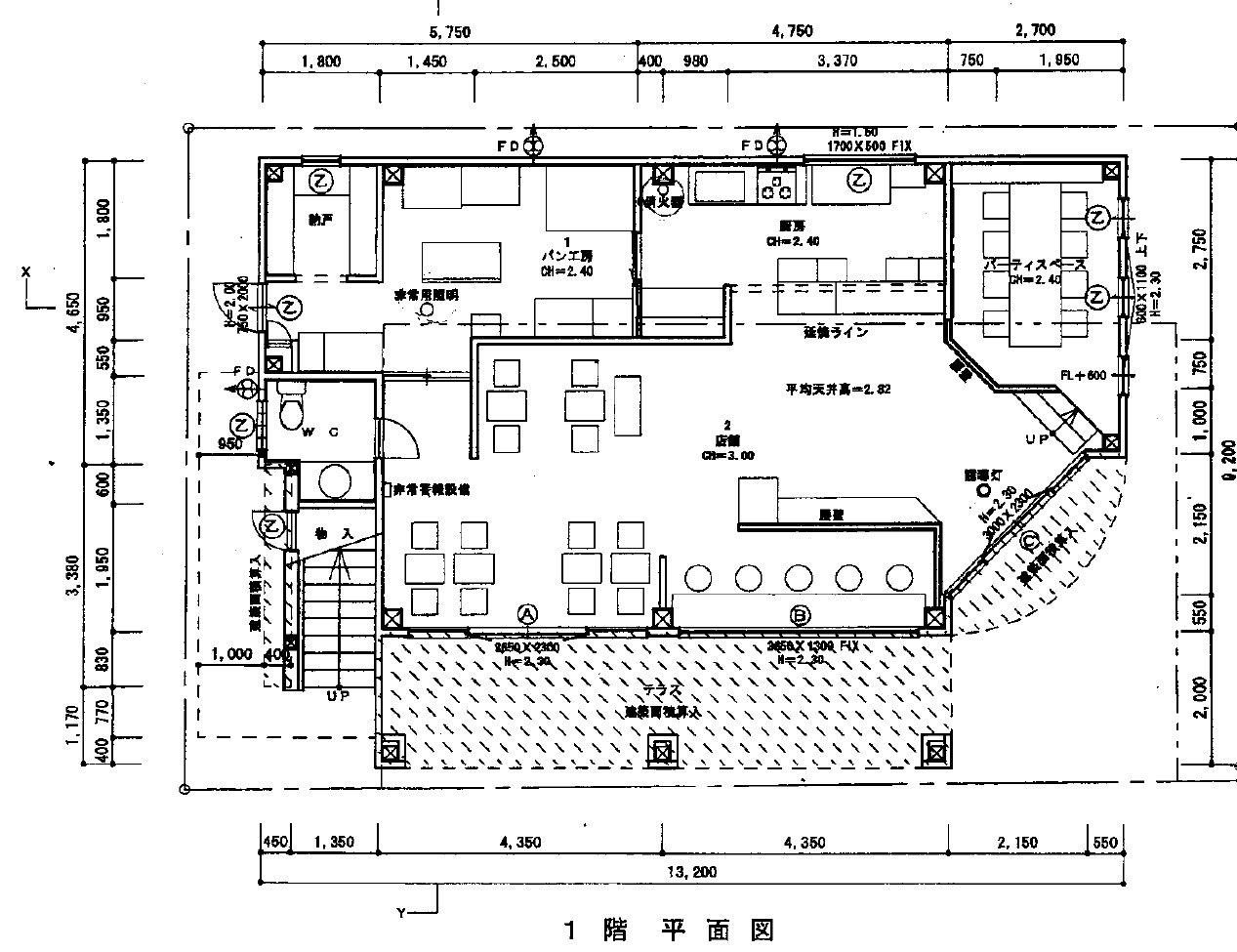
河内山本駅から徒歩3分、ベーカリーカフェ居抜き物件!
・イタリアン、フレンチ店にぴったりなおしゃれな内装
・オーブン、ミキサー、自動販売機(相談)など譲渡
・テーブル約25席、カウンター6席。テラス席あり
・グリストラップなし、動力電源あり。都市ガス。
・家賃保証、店舗総合保険の加入が必須です。
・企画料1ヵ月分。造作譲渡手数料10%
--------------------------------------------------------------------------------
※賃貸条件については現状のものとなりますので、変更の可能性があります。
※取扱会社規定の賃貸借契約手数料、譲渡契約手数料が発生します。
※現在営業中の店舗もありますので、店舗への連絡、従業員及び、関係者への物件に関するお問い合せ、
写真撮影、店内での本物件に関する話題等、営業に支障をきたす行為は固く禁止致します。

この案件の取り扱い会社

株式会社フードビジネスロード

東京都大田区西蒲田7-65-9

担当者:渡邊 元

この案件へ問い合わせる

問い合わせには飲食店ドットコム会員登録が必要です。
無料会員登録ログイン

あなたにおすすめの案件

別の案件を探す
相談0円 居抜きで売却するなら、早めのご相談がおすすめです! 詳しく見る