受付時間:平日9時~17時
売却マイページ
譲渡No.8187

目黒区のカフェの居抜き売却物件の案件情報 駅徒歩1分!商店街に面した1階、カフェ居抜き!

案件概要

最寄り駅

祐天寺 (東急東横線)
徒歩1

現賃料 / 坪単価

- / 19,561

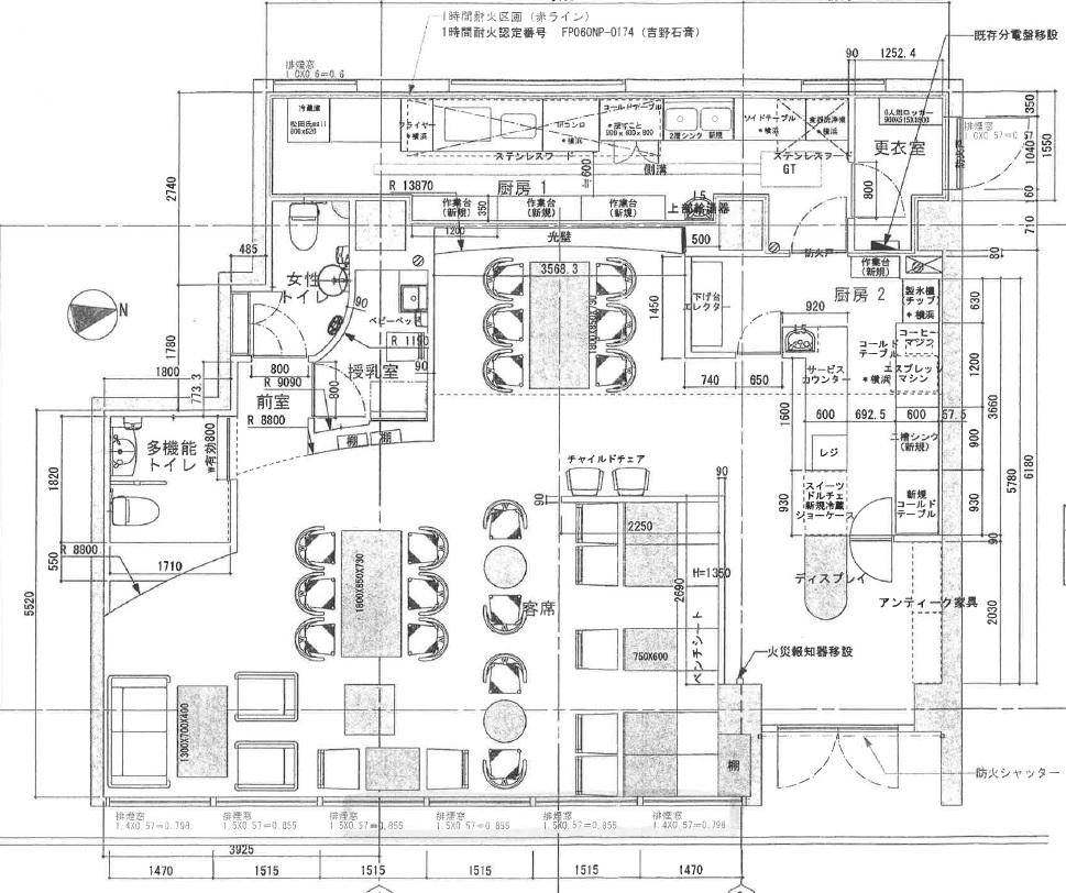
面積 坪(㎡)

33.74坪111.54m2

希望譲渡額

0万円

前業態

カフェ

募集終了しました

案件詳細情報

所在地

東京23区 目黒区

最寄り駅

祐天寺 (東急東横線) 徒歩1分

現賃料 / 坪単価

- / 19,561円

階数 / 建物

地上1階 /

面積 坪(㎡)

33.74坪111.54m2

構造

RC造

保証金・敷金

-

契約期間

定借3年

礼金

-

希望譲渡額

0万円

共益費 / 管理費

-

償却

-

更新料

-

情報公開日(更新日)

2020-02-07

現テナントの基本情報

業態

カフェ

営業年数

-

営業時間

-

席数

-

コメント

-

この案件の取り扱い会社

募集終了しました

別の案件を探す
相談0円 居抜きで売却するなら、早めのご相談がおすすめです! 詳しく見る