受付時間:平日9時~17時
売却マイページ
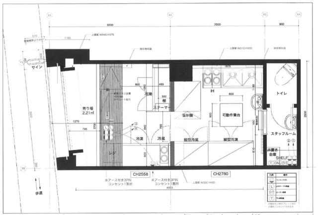
譲渡No.8134

渋谷区のタピオカドリンクの居抜き売却物件の案件情報 大通りに面した1階、テイクアウト専門店!

案件概要

最寄り駅

原宿 (JR山手線)
徒歩5

現賃料 / 坪単価

- / 77,407

面積 坪(㎡)

5.4坪17.85m2

希望譲渡額

300万円

前業態

タピオカドリンク

募集終了しました

案件詳細情報

所在地

東京23区 渋谷区

最寄り駅

原宿 (JR山手線) 徒歩5分

現賃料 / 坪単価

- / 77,407円

階数 / 建物

地上1階 / 地上5地下1階建

面積 坪(㎡)

5.4坪17.85m2

構造

RC造

保証金・敷金

-

契約期間

定借1年

礼金

-

希望譲渡額

300万円

共益費 / 管理費

-

償却

-

更新料

-

情報公開日(更新日)

2020-04-06

現テナントの基本情報

業態

タピオカドリンク

営業年数

-

営業時間

-

席数

-

コメント

-

この案件の取り扱い会社

募集終了しました

別の案件を探す
相談0円 居抜きで売却するなら、早めのご相談がおすすめです! 詳しく見る