受付時間:平日9時~17時
売却マイページ
譲渡No.8119

武蔵野市の居酒屋の居抜き売却物件の案件情報 吉祥寺駅徒歩3分!1階路面、居酒屋居抜き!

案件概要

最寄り駅

吉祥寺 (JR中央線)
徒歩3

現賃料 / 坪単価

- / 24,691

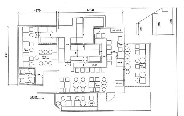
面積 坪(㎡)

35.64坪117.82m2

希望譲渡額

100万円

前業態

居酒屋

募集終了しました

案件詳細情報

所在地

東京都下 武蔵野市

最寄り駅

吉祥寺 (JR中央線) 徒歩3分

現賃料 / 坪単価

- / 24,691円

階数 / 建物

地上1階 / 地上8階建

面積 坪(㎡)

35.64坪117.82m2

構造

RC造

保証金・敷金

-

契約期間

普通3年

礼金

-

希望譲渡額

100万円

共益費 / 管理費

-

償却

-

更新料

-

情報公開日(更新日)

2020-02-04

現テナントの基本情報

業態

居酒屋

営業年数

-

営業時間

-

席数

-

コメント

-

この案件の取り扱い会社

募集終了しました

別の案件を探す
相談0円 居抜きで売却するなら、早めのご相談がおすすめです! 詳しく見る