受付時間:平日9時~17時
売却マイページ
譲渡No.7885

台東区のカフェの居抜き売却物件の案件情報 駅徒歩3分!商店街に面した1階、カフェ居抜き!

案件概要

最寄り駅

新御徒町 (都営大江戸線)
徒歩3

現賃料 / 坪単価

- / 15,301

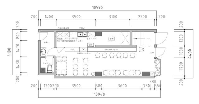
面積 坪(㎡)

12.705坪42.0m2

希望譲渡額

200万円

前業態

カフェ

募集終了しました

案件詳細情報

所在地

東京23区 台東区

最寄り駅

新御徒町 (都営大江戸線) 徒歩3分

仲御徒町 (東京メトロ日比谷線) 徒歩7分

現賃料 / 坪単価

- / 15,301円

階数 / 建物

地上1階 / 地上5階建

面積 坪(㎡)

12.705坪42.0m2

構造

鉄骨造

保証金・敷金

-

契約期間

2年

礼金

-

希望譲渡額

200万円

共益費 / 管理費

-

償却

-

更新料

-

情報公開日(更新日)

2019-07-12

現テナントの基本情報

業態

カフェ

営業年数

-

営業時間

-

席数

-

コメント

-

この案件の取り扱い会社

募集終了しました

別の案件を探す
相談0円 居抜きで売却するなら、早めのご相談がおすすめです! 詳しく見る