受付時間:平日9時~17時
売却マイページ
譲渡No.7685

立川市のラーメンの居抜き売却物件の案件情報 立川エリアの居抜き物件!

案件概要

最寄り駅

立川 (JR中央線)
徒歩5

現賃料 / 坪単価

- / 14,537

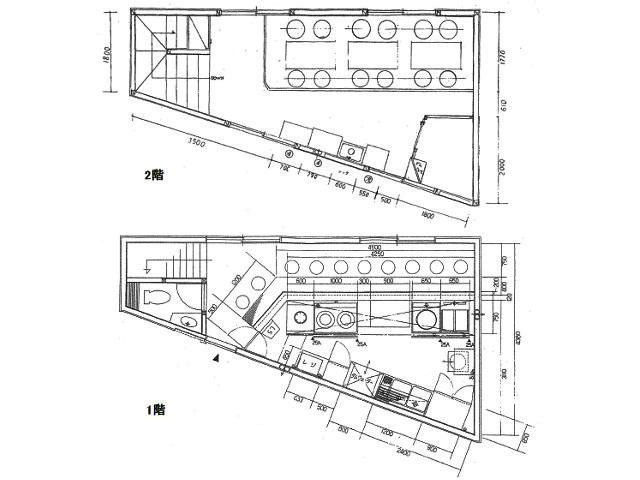
面積 坪(㎡)

14.71坪48.62m2

希望譲渡額

97.2万円

前業態

ラーメン

募集終了しました

案件詳細情報

所在地

東京都下 立川市

最寄り駅

立川 (JR中央線) 徒歩5分

現賃料 / 坪単価

- / 14,537円

階数 / 建物

地上1-地上2階 /

面積 坪(㎡)

14.71坪48.62m2

構造

木造

保証金・敷金

-

契約期間

3年

礼金

-

希望譲渡額

97.2万円

共益費 / 管理費

-

償却

-

更新料

-

情報公開日(更新日)

2019-03-12

売却テナントの基本情報

業態

ラーメン

営業年数

-

営業時間

-

席数

-

コメント

-

この案件の取り扱い会社

募集終了しました

別の案件を探す
相談0円 居抜きで売却するなら、早めのご相談がおすすめです! 詳しく見る