受付時間:平日9時~17時
売却マイページ
譲渡No.6554

目黒区のオイスターバーの居抜き売却物件の案件情報 学芸大学駅!商店街沿いの角地・視認性良好なオイスターバー居抜き物件

案件概要

最寄り駅

学芸大学 (東急東横線)
徒歩2

現賃料 / 坪単価

- / 24,381

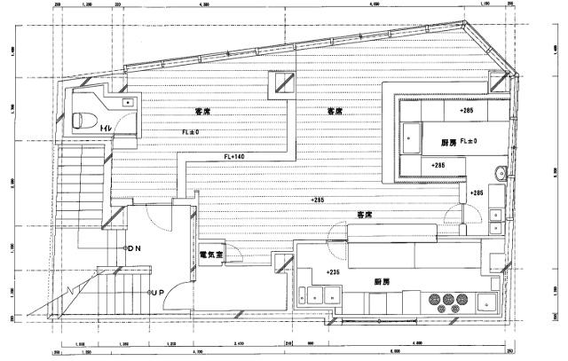
面積 坪(㎡)

22.06坪72.94m2

希望譲渡額

162万円

前業態

オイスターバー

募集終了しました

案件詳細情報

所在地

東京23区 目黒区

最寄り駅

学芸大学 (東急東横線) 徒歩2分

現賃料 / 坪単価

- / 24,381円

階数 / 建物

地上2階 /

面積 坪(㎡)

22.06坪72.94m2

構造

鉄筋コンクリート造

保証金・敷金

-

契約期間

3年

礼金

-

希望譲渡額

162万円

共益費 / 管理費

-

償却

-

更新料

-

情報公開日(更新日)

2017-07-19

現テナントの基本情報

業態

オイスターバー

営業年数

-

営業時間

-

席数

-

コメント

-

この案件の取り扱い会社

募集終了しました