受付時間:平日9時~17時
売却マイページ
譲渡No.6537

港区の定食屋の居抜き売却物件の案件情報 ビジネス街の新橋エリア!1階路面、美内装物件です。

案件概要

最寄り駅

新橋 (JR山手線)
徒歩6

現賃料 / 坪単価

- / 42,282

面積 坪(㎡)

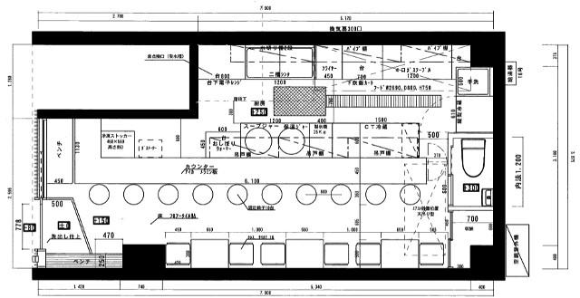
8.94坪29.55m2

希望譲渡額

相談

前業態

定食屋

募集終了しました

案件詳細情報

所在地

東京23区 港区

最寄り駅

新橋 (JR山手線) 徒歩6分

内幸町 (都営三田線) 徒歩3分

現賃料 / 坪単価

- / 42,282円

階数 / 建物

地上1階 /

面積 坪(㎡)

8.94坪29.55m2

構造

鉄筋コンクリート造

保証金・敷金

-

契約期間

定借8年

礼金

-

希望譲渡額

相談

共益費 / 管理費

-

償却

-

更新料

-

情報公開日(更新日)

2017-04-18

現テナントの基本情報

業態

定食屋

営業年数

-

営業時間

-

席数

-

コメント

-

この案件の取り扱い会社

募集終了しました

別の案件を探す
相談0円 居抜きで売却するなら、早めのご相談がおすすめです! 詳しく見る