受付時間:平日9時~17時
売却マイページ
譲渡No.6235

港区の居酒屋の居抜き売却物件の案件情報 大門駅至近!看板多数取れ視認性良好!芝神明商店街沿い美内装居酒屋居抜き

案件概要

最寄り駅

大門 (都営大江戸線)
徒歩1

現賃料 / 坪単価

- / 25,530

面積 坪(㎡)

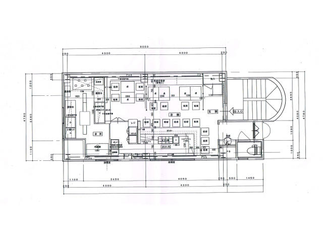
13.96坪46.16m2

希望譲渡額

248.4万円

前業態

居酒屋

募集終了しました

案件詳細情報

所在地

東京23区 港区

最寄り駅

大門 (都営大江戸線) 徒歩1分

浜松町 (JR山手線) 徒歩5分

現賃料 / 坪単価

- / 25,530円

階数 / 建物

地上2階 /

面積 坪(㎡)

13.96坪46.16m2

構造

鉄筋鉄骨コンクリート造

保証金・敷金

-

契約期間

3年

礼金

-

希望譲渡額

248.4万円

共益費 / 管理費

-

償却

-

更新料

-

情報公開日(更新日)

2017-01-16

現テナントの基本情報

業態

居酒屋

営業年数

-

営業時間

-

席数

-

コメント

-

この案件の取り扱い会社

募集終了しました

別の案件を探す
相談0円 居抜きで売却するなら、早めのご相談がおすすめです! 詳しく見る