受付時間:平日9時~17時
売却マイページ
譲渡No.6113

港区の定食屋の居抜き売却物件の案件情報 2駅利用可能でアクセス良好!営業実績18年の定食屋居抜き店舗

案件概要

最寄り駅

新橋 (JR山手線)
徒歩4

現賃料 / 坪単価

- / 19,765

面積 坪(㎡)

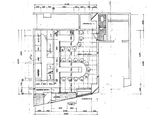
15.3坪50.6m2

希望譲渡額

378万円

前業態

定食屋

募集終了しました

案件詳細情報

所在地

東京23区 港区

最寄り駅

新橋 (JR山手線) 徒歩4分

新橋 (JR京浜東北・根岸線) 徒歩4分

現賃料 / 坪単価

- / 19,765円

階数 / 建物

地上1階 /

面積 坪(㎡)

15.3坪50.6m2

構造

鉄筋コンクリート造

保証金・敷金

-

契約期間

2年

礼金

-

希望譲渡額

378万円

共益費 / 管理費

-

償却

-

更新料

-

情報公開日(更新日)

2016-06-27

現テナントの基本情報

業態

定食屋

営業年数

-

営業時間

-

席数

-

コメント

-

この案件の取り扱い会社

募集終了しました

別の案件を探す
相談0円 居抜きで売却するなら、早めのご相談がおすすめです! 詳しく見る