受付時間:平日9時~17時
売却マイページ
譲渡No.5626

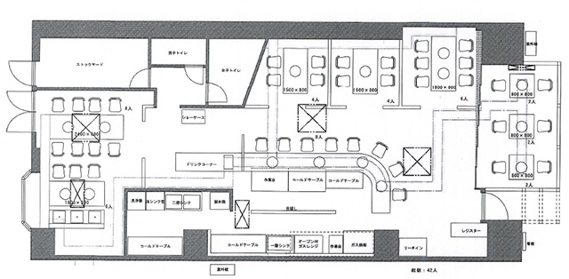
武蔵野市の焼肉店の居抜き売却物件の案件情報 成城大学すぐそば。焼き肉屋の居抜き店舗です。

案件概要

最寄り駅

吉祥寺 (JR中央線)
徒歩16

現賃料 / 坪単価

- / 11,941

面積 坪(㎡)

36.2坪119.6m2

希望譲渡額

216万円

前業態

焼肉店

募集終了しました

案件詳細情報

所在地

東京都下 武蔵野市

最寄り駅

吉祥寺 (JR中央線) 徒歩16分

吉祥寺 (JR総武線) 徒歩16分

現賃料 / 坪単価

- / 11,941円

階数 / 建物

地上1階 /

面積 坪(㎡)

36.2坪119.6m2

構造

鉄筋コンクリート造

保証金・敷金

-

契約期間

3年

礼金

-

希望譲渡額

216万円

共益費 / 管理費

-

償却

-

更新料

-

情報公開日(更新日)

2015-07-13

現テナントの基本情報

業態

焼肉店

営業年数

-

営業時間

-

席数

-

コメント

-

この案件の取り扱い会社

募集終了しました

別の案件を探す
相談0円 居抜きで売却するなら、早めのご相談がおすすめです! 詳しく見る