受付時間:平日9時~17時
売却マイページ
譲渡No.3858

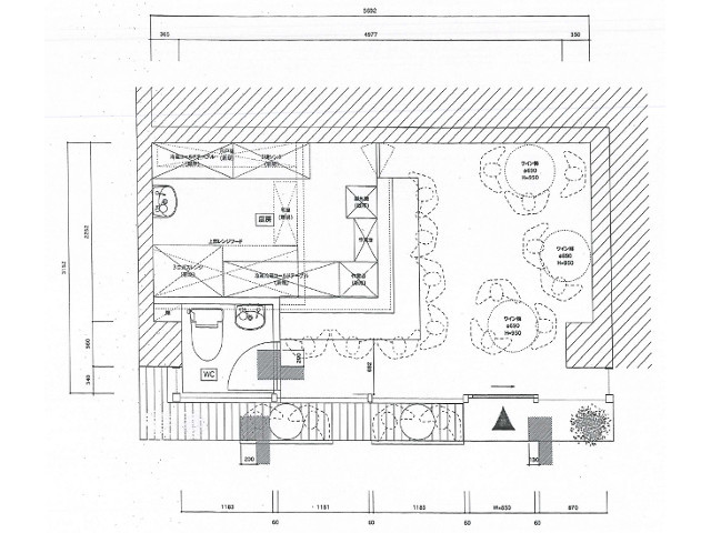
渋谷区のワインバーの居抜き売却物件の案件情報 駅至近の間口6メートル・角地・美装内装居抜き!

案件概要

最寄り駅

幡ヶ谷 (京王本線)
徒歩1

現賃料 / 坪単価

- / 48,544

面積 坪(㎡)

5.15坪17.02m2

希望譲渡額

50万円

前業態

ワインバー

募集終了しました

案件詳細情報

所在地

東京23区 渋谷区

最寄り駅

幡ヶ谷 (京王本線) 徒歩1分

現賃料 / 坪単価

- / 48,544円

階数 / 建物

地上1階 /

面積 坪(㎡)

5.15坪17.02m2

構造

鉄筋コンクリート造

保証金・敷金

-

契約期間

3年

礼金

-

希望譲渡額

50万円

共益費 / 管理費

-

償却

-

更新料

-

情報公開日(更新日)

2013-04-17

現テナントの基本情報

業態

ワインバー

営業年数

-

営業時間

-

席数

-

コメント

-

この案件の取り扱い会社

募集終了しました

別の案件を探す
相談0円 居抜きで売却するなら、早めのご相談がおすすめです! 詳しく見る