受付時間:平日9時~17時
売却マイページ
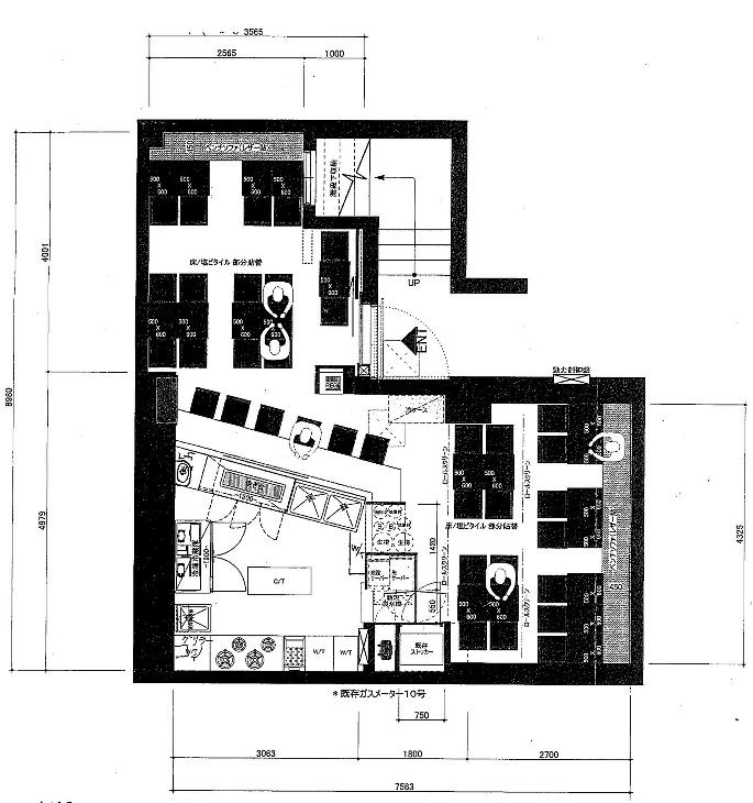
譲渡No.2657

港区の串焼きの居抜き売却物件の案件情報 オフィス立地の店舗になります。営業して間もないので、美装居抜きになります。

案件概要

最寄り駅

虎ノ門 (東京メトロ銀座線)
徒歩4

現賃料 / 坪単価

- / 30,000

面積 坪(㎡)

15坪50.0m2

希望譲渡額

350万円

前業態

串焼き

募集終了しました

案件詳細情報

所在地

東京23区 港区

最寄り駅

虎ノ門 (東京メトロ銀座線) 徒歩4分

現賃料 / 坪単価

- / 30,000円

階数 / 建物

地下1階 /

面積 坪(㎡)

15坪50.0m2

構造

保証金・敷金

-

契約期間

3年

礼金

-

希望譲渡額

350万円

共益費 / 管理費

-

償却

-

更新料

-

情報公開日(更新日)

2011-05-27

現テナントの基本情報

業態

串焼き

営業年数

-

営業時間

-

席数

-

コメント

-

この案件の取り扱い会社

募集終了しました

別の案件を探す
相談0円 居抜きで売却するなら、早めのご相談がおすすめです! 詳しく見る