受付時間:平日9時~17時
売却マイページ
譲渡No.2211

目黒区のバーの居抜き売却物件の案件情報 バー居抜き店舗! 造作美装です!

案件概要

最寄り駅

祐天寺 (東急東横線)
徒歩1

現賃料 / 坪単価

- / 13,500

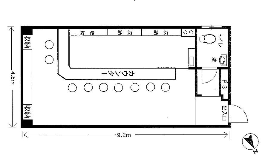
面積 坪(㎡)

14.01坪46.3m2

希望譲渡額

200万円

前業態

バー

募集終了しました

案件詳細情報

所在地

東京23区 目黒区

最寄り駅

祐天寺 (東急東横線) 徒歩1分

現賃料 / 坪単価

- / 13,500円

階数 / 建物

地上2階 / 地上3階建

面積 坪(㎡)

14.01坪46.3m2

構造

鉄筋コンクリート造

保証金・敷金

-

契約期間

2年

礼金

-

希望譲渡額

200万円

共益費 / 管理費

-

償却

-

更新料

-

情報公開日(更新日)

2010-12-10

現テナントの基本情報

業態

バー

営業年数

-

営業時間

-

席数

-

コメント

-

この案件の取り扱い会社

募集終了しました

別の案件を探す
相談0円 居抜きで売却するなら、早めのご相談がおすすめです! 詳しく見る