受付時間:平日9時~17時
売却マイページ
譲渡No.11693

小金井市の 食堂 の居抜き売却物件の案件情報 武蔵小金井駅徒歩16分!飲食店居抜き物件!

この案件の反響

ご相談から募集開始までの期間

2日

問い合わせ数

6件

募集開始から売却までの期間

23日

案件概要

最寄り駅

武蔵小金井 (JR中央線)
徒歩16

現賃料 / 坪単価

- / 12,303

面積 坪(㎡)

7.6坪25.12m2

希望譲渡額

80万円

前業態

食堂

募集終了しました

案件詳細情報

所在地

東京都下 小金井市

最寄り駅

武蔵小金井 (JR中央線) 徒歩16分

現賃料 / 坪単価

- / 12,303円

階数 / 建物

地上1階 / 地上3階建

面積 坪(㎡)

7.6坪25.12m2

構造

RC造

保証金・敷金

-

契約期間

3年

礼金

-

希望譲渡額

80万円

共益費 / 管理費

-

償却

-

更新料

-

情報公開日(更新日)

2025-06-18

売却テナントの基本情報

業態

食堂

営業年数

1年

営業時間

11:00 - 14:00
17:00 - 21:00

席数

8席

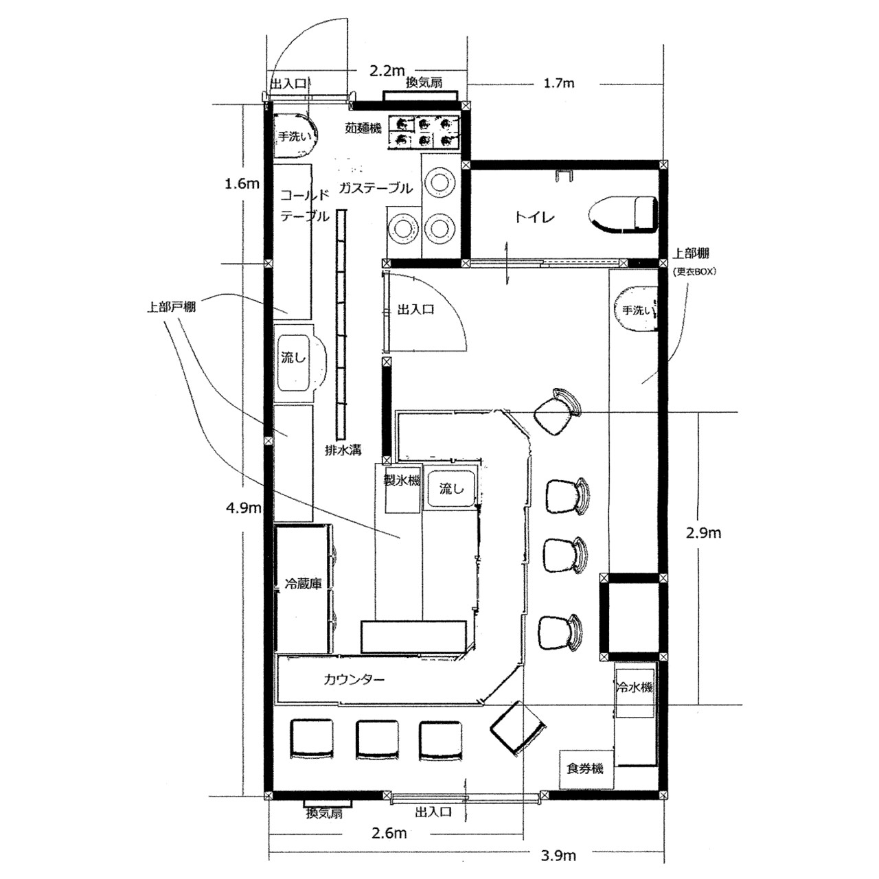
コメント

武蔵小金井駅徒歩16分!飲食店居抜き物件!
現在は食堂として営業中です。
コンパクトで清潔感のある内装となっております。
保証会社・火災保険必須
譲渡品 基本一式
ダクト直吹、グリストあり
※詳しくはお問い合わせください。
--------------------------------------------------------------------------------
※賃貸条件については現状のものとなりますので、変更の可能性があります。
※取扱会社規定の賃貸借契約手数料、譲渡契約手数料が発生します。
※現在営業中の店舗もありますので、店舗への連絡、従業員及び、関係者への物件に関するお問い合せ、
写真撮影、店内での本物件に関する話題等、営業に支障をきたす行為は固く禁止致します。

この案件の取り扱い会社

募集終了しました

あなたにおすすめの案件

別の案件を探す
相談0円 居抜きで売却するなら、早めのご相談がおすすめです! 詳しく見る