受付時間:平日9時~17時
売却マイページ
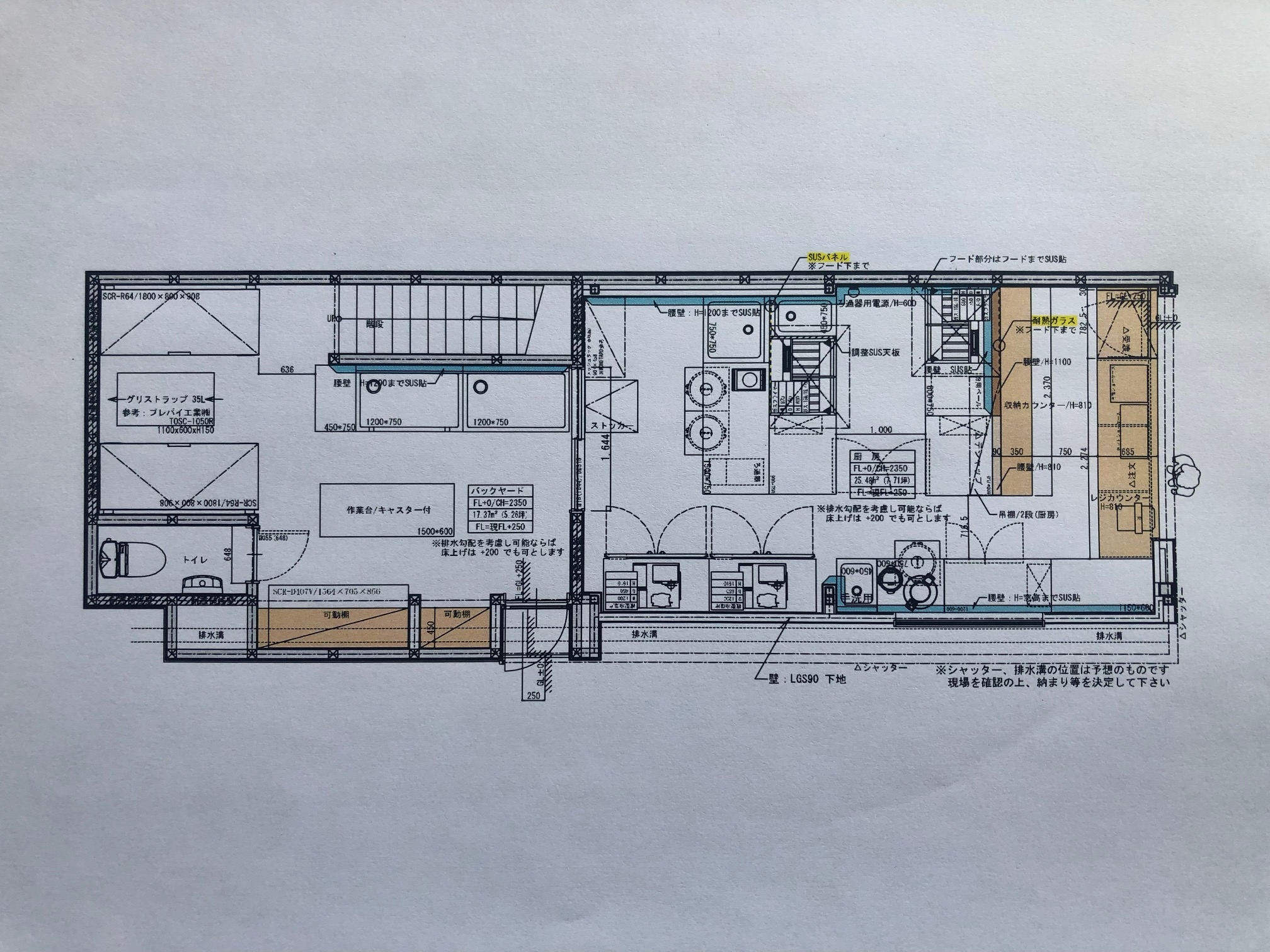
譲渡No.10478

神戸市兵庫区のから揚げの居抜き売却物件の案件情報 湊川公園駅・湊川駅より徒歩3分!テイクアウト居抜き物件!

案件概要

最寄り駅

湊川 (神鉄有馬線)
徒歩3

現賃料 / 坪単価

- / 15,714

面積 坪(㎡)

14坪46.28m2

希望譲渡額

200万円

前業態

から揚げ

募集終了しました

案件詳細情報

所在地

兵庫県 神戸市兵庫区

最寄り駅

湊川 (神鉄有馬線) 徒歩3分

湊川公園 (地下鉄西神・山手線) 徒歩3分

現賃料 / 坪単価

- / 15,714円

階数 / 建物

地上1階 / 地上2階建

面積 坪(㎡)

14坪46.28m2

構造

木造

保証金・敷金

-

契約期間

2年

礼金

-

希望譲渡額

200万円

共益費 / 管理費

-

償却

-

更新料

-

情報公開日(更新日)

2024-07-31

現テナントの基本情報

業態

から揚げ

営業年数

-

営業時間

-

席数

-

コメント

-

この案件の取り扱い会社

募集終了しました

別の案件を探す
相談0円 居抜きで売却するなら、早めのご相談がおすすめです! 詳しく見る