-
募集終了
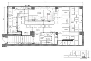
豊島区(大塚)地上1階店舗の居抜き売却案件
居抜き譲渡
譲渡No.:7411
公開日:2018-12-17
最寄り駅
JR山手線 大塚 徒歩 3分
賃料/坪単価
- / 19,048円
階数/面積
地上1階 /
11.34坪(37.5m2)敷金/礼金
- / -
前業態/
希望譲渡額焼き鳥 / 32.4万円
所在地
豊島区
取扱会社
-
大塚駅北口徒歩3分。大塚銀の鈴通り近くの路面居抜き物件。
-
募集終了
町田市(町田)地上2階店舗の居抜き売却案件
居抜き譲渡
譲渡No.:7536
公開日:2018-12-17
最寄り駅
JR横浜線 町田 徒歩 5分
賃料/坪単価
- / 10,864円
階数/面積
地上2階 /
16.9坪(55.87m2)敷金/礼金
- / -
前業態/
希望譲渡額居酒屋 / 100万円
所在地
町田市
取扱会社
-
町田駅北口から徒歩5分!居酒屋居抜き店舗!
-
募集終了
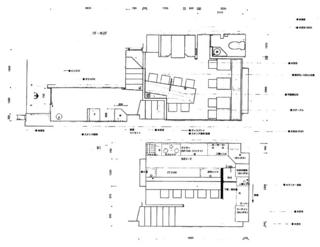
千代田区(神保町)地上1-地上3階店舗の居抜き売却案件
居抜き譲渡
譲渡No.:7537
公開日:2018-12-17
最寄り駅
都営三田線 神保町 徒歩 3分
賃料/坪単価
- / 15,632円
階数/面積
地上1-地上3階 /
38坪(125.63m2)敷金/礼金
- / -
前業態/
希望譲渡額焼き鳥 / 54万円
所在地
千代田区
取扱会社
-
神保町駅より徒歩3分!焼き鳥居抜き物件。重飲食可。
-
飲食店の閉店をお考えの方
物件の解約予告を出す前に、ぜひ一度専門家へご相談ください!
居抜きで売却することで、閉店コストの削減、
もしくは売却益が出る可能性があります。早めのご相談が売却成功への鍵。
居抜き売却の詳細はこちら -
募集終了
品川区(武蔵小山)地上2階店舗の居抜き売却案件
居抜き譲渡
譲渡No.:7533
公開日:2018-12-13
最寄り駅
東急目黒線 武蔵小山 徒歩 5分
賃料/坪単価
- / 13,152円
階数/面積
地上2階 /
37.522坪(124.04m2)敷金/礼金
- / -
前業態/
希望譲渡額居酒屋 / 450万円
所在地
品川区
取扱会社
-
武蔵小山駅近!人気商店街内店舗!
-
募集終了
世田谷区(下北沢)地下1階店舗の居抜き売却案件
居抜き譲渡
譲渡No.:7531
公開日:2018-12-13
最寄り駅
小田急本線・小田原線 下北沢 徒歩 2分
賃料/坪単価
- / 20,843円
階数/面積
地下1階 /
13.99坪(46.27m2)敷金/礼金
- / -
前業態/
希望譲渡額居酒屋 / 75.6万円
所在地
世田谷区
取扱会社
-
下北沢駅より徒歩2分!居酒屋居抜き物件
-
募集終了
新宿区(高田馬場)地上1階店舗の居抜き売却案件
居抜き譲渡
譲渡No.:7449
公開日:2018-12-12
最寄り駅
JR山手線 高田馬場 徒歩 9分
賃料/坪単価
- / 23,439円
階数/面積
地上1階 /
5.99坪(19.8m2)敷金/礼金
- / -
前業態/
希望譲渡額居酒屋 / 43.2万円
所在地
新宿区
取扱会社
-
高田馬場エリア!早稲田通りに面す居酒屋居抜き物件。
-
募集終了
墨田区(錦糸町)地上1階店舗の居抜き売却案件
居抜き譲渡
譲渡No.:7526
公開日:2018-12-12
最寄り駅
JR総武線 錦糸町 徒歩 3分
賃料/坪単価
- / 21,808円
階数/面積
地上1階 /
20.8坪(68.76m2)敷金/礼金
- / -
前業態/
希望譲渡額居酒屋 / 702万円
所在地
墨田区
取扱会社
-
錦糸町北口エリア。1階路面のきれいな居酒屋居抜き物件。
-
募集終了
文京区(御茶ノ水)地下1階店舗の居抜き売却案件
居抜き譲渡
譲渡No.:7286
公開日:2018-12-11
最寄り駅
JR中央線 御茶ノ水 徒歩 5分
賃料/坪単価
- / 16,200円
階数/面積
地下1階 /
23.83坪(78.78m2)敷金/礼金
- / -
前業態/
希望譲渡額ダイニングバー / 220万円
所在地
文京区
取扱会社
-
御茶ノ水駅徒歩5分!上階マンション、ダイニングバー居抜き店舗!
-
募集終了
熊谷市(熊谷)地上1階店舗の居抜き売却案件
居抜き譲渡
譲渡No.:7523
公開日:2018-12-10
最寄り駅
JR高崎線 熊谷 徒歩 9分
賃料/坪単価
- / 2,243円
階数/面積
地上1階 /
33.7坪(111.42m2)敷金/礼金
- / -
前業態/
希望譲渡額ダイニングバー / 250万円
所在地
熊谷市
取扱会社
-
通りに面した1階店舗!
-
募集終了
神戸市中央区(三ノ宮)地上1階店舗の居抜き売却案件
居抜き譲渡
譲渡No.:6932
公開日:2018-12-10
最寄り駅
JR東海道本線 三ノ宮 徒歩 11分
賃料/坪単価
- / 11,548円
階数/面積
地上1階 /
23.38坪(77.289m2)敷金/礼金
- / -
前業態/
希望譲渡額ダイニングバー / 180万円
所在地
神戸市中央区
取扱会社
-
フラワーロードに面す1階飲食店居抜き店舗
-
募集終了
さいたま市浦和区(北浦和)地上1-地上2階店舗の居抜き売却案件
居抜き譲渡
譲渡No.:7445
公開日:2018-12-06
最寄り駅
JR京浜東北・根岸線 北浦和 徒歩 2分
賃料/坪単価
- / 18,091円
階数/面積
地上1-地上2階 /
19.7坪(65.14m2)敷金/礼金
- / -
前業態/
希望譲渡額焼き鳥 / 相談
所在地
さいたま市浦和区
取扱会社
-
京浜東北線北浦和駅より徒歩2分。重飲食可能な1棟貸店舗。
-
募集終了
墨田区(本所吾妻橋)地上1階店舗の居抜き売却案件
居抜き譲渡
譲渡No.:7515
公開日:2018-12-05
最寄り駅
都営浅草線 本所吾妻橋 徒歩 1分
賃料/坪単価
- / 15,620円
階数/面積
地上1階 /
24.2坪(80.0m2)敷金/礼金
- / -
前業態/
希望譲渡額焼鳥 / 280.8万円
所在地
墨田区
取扱会社
-
駅徒歩1分!浅草通り沿いの1階路面店!
-
募集終了
港区(外苑前)地上3階店舗の居抜き売却案件
居抜き譲渡
譲渡No.:7287
公開日:2018-12-03
最寄り駅
東京メトロ銀座線 外苑前 徒歩 3分
賃料/坪単価
- / 18,230円
階数/面積
地上3階 /
26.66坪(88.16m2)敷金/礼金
- / -
前業態/
希望譲渡額ダイニングバー / 324万円
所在地
港区
取扱会社
-
外苑前駅、神宮外苑近く!青山通り沿い、ダイニングバー居抜き店舗。
-
募集終了
渋谷区(恵比寿)地下1階店舗の居抜き売却案件
居抜き譲渡
譲渡No.:7408
公開日:2018-12-01
最寄り駅
JR山手線 恵比寿 徒歩 2分
賃料/坪単価
- / 31,963円
階数/面積
地下1階 /
19.26坪(63.7m2)敷金/礼金
- / -
前業態/
希望譲渡額ダイニングバー / 相談
所在地
渋谷区
取扱会社
-
恵比寿エリア!終日人通りの多い立地です。
-
募集終了
横浜市神奈川区(白楽)地上1階店舗の居抜き売却案件
居抜き譲渡
譲渡No.:7443
公開日:2018-11-30
最寄り駅
東急東横線 白楽 徒歩 6分
賃料/坪単価
- / 7,895円
階数/面積
地上1階 /
7.98坪(26.4m2)敷金/礼金
- / -
前業態/
希望譲渡額居酒屋 / 235万円
所在地
横浜市神奈川区
取扱会社
-
白楽駅近く、1階路面居酒屋居抜き店舗!
-
募集終了
中央区(八丁堀)地上1階店舗の居抜き売却案件
居抜き譲渡
譲渡No.:7432
公開日:2018-11-29
最寄り駅
東京メトロ日比谷線 八丁堀 徒歩 2分
賃料/坪単価
- / 28,084円
階数/面積
地上1階 /
11.46坪(37.91m2)敷金/礼金
- / -
前業態/
希望譲渡額居酒屋 / 162万円
所在地
中央区
取扱会社
-
間口18Mで視認性良好!八丁堀駅近くの1階角地。居酒屋居抜き。
-
募集終了
神戸市東灘区(青木)地上1階店舗の居抜き売却案件
居抜き譲渡
譲渡No.:7376
公開日:2018-11-29
最寄り駅
阪神本線 青木 徒歩 3分
賃料/坪単価
- / 8,157円
階数/面積
地上1階 /
13.24坪(43.77m2)敷金/礼金
- / -
前業態/
希望譲渡額ダイニングバー / 200万円
所在地
神戸市東灘区
取扱会社
-
駅徒歩3分!1階路面、居酒屋居抜き!
-
募集終了
小平市(鷹の台)地上1-地上2階店舗の居抜き売却案件
居抜き譲渡
譲渡No.:7451
公開日:2018-11-27
最寄り駅
西武国分寺線 鷹の台 徒歩 4分
賃料/坪単価
- / 6,466円
階数/面積
地上1-地上2階 /
24.74坪(81.8m2)敷金/礼金
- / -
前業態/
希望譲渡額焼鳥居酒屋 / 280万円
所在地
小平市
取扱会社
-
駅徒歩4分!1-2階、居酒屋居抜き店舗!
-
募集終了
柏市(柏)地上1階店舗の居抜き売却案件
居抜き譲渡
譲渡No.:7497
公開日:2018-11-26
最寄り駅
JR常磐線 柏 徒歩 5分
賃料/坪単価
- / 12,888円
階数/面積
地上1階 /
54.47坪(180.08m2)敷金/礼金
- / -
前業態/
希望譲渡額居酒屋 / 相談
所在地
柏市
取扱会社
-
柏駅から徒歩5分。主要導線上の路面1階。居酒屋居抜き物件。
-
募集終了
さいたま市大宮区(大宮)地上3階店舗の居抜き売却案件
居抜き譲渡
譲渡No.:7373
公開日:2018-11-16
最寄り駅
JR京浜東北・根岸線 大宮 徒歩 2分
賃料/坪単価
- / 24,467円
階数/面積
地上3階 /
56.5坪(186.45m2)敷金/礼金
- / -
前業態/
希望譲渡額居酒屋 / 50万円
所在地
さいたま市大宮区
取扱会社
-
JR大宮駅から徒歩2分! 南銀座通り沿い、居酒屋居抜き店舗!