受付時間:平日9時~17時
売却マイページ
譲渡No.8932

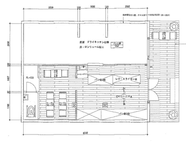
綾瀬市のベーカリーの居抜き売却物件の案件情報 希少!綾瀬市オープンテラス付きベーカリーショップ居抜き物件!

案件概要

最寄り駅

長後 (小田急江ノ島線)
徒歩28

現賃料 / 坪単価

- / 5,069

面積 坪(㎡)

15.78坪52.17m2

希望譲渡額

330万円

前業態

ベーカリー

募集終了しました

案件詳細情報

所在地

神奈川県 綾瀬市

最寄り駅

長後 (小田急江ノ島線) 徒歩28分

現賃料 / 坪単価

- / 5,069円

階数 / 建物

地上1階 / 地上1階建

面積 坪(㎡)

15.78坪52.17m2

構造

木造

保証金・敷金

-

契約期間

普通2年

礼金

-

希望譲渡額

330万円

共益費 / 管理費

-

償却

-

更新料

-

情報公開日(更新日)

2021-10-29

現テナントの基本情報

業態

ベーカリー

営業年数

-

営業時間

-

席数

-

コメント

-

この案件の取り扱い会社

募集終了しました

別の案件を探す
相談0円 居抜きで売却するなら、早めのご相談がおすすめです! 詳しく見る